Maison neuve à
Clermont
(60600) Référence :
FBcambronneclerrr85_3
Prix du projet : Maison avec Terrain
prix 262 000 €
- 5 pièces
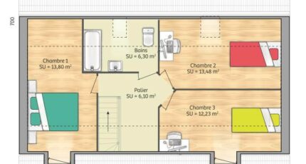
- 3 chambres
- Surface maison 80 m2
VENTE d'une maison de 5 pièces (80 m²) à Cambronne-lès-Clermont
EMPLACEMENT PRIVILÉGIÉ - MAISON 5 PIÈCES NEUVE
À deux pas de la station Creil (Paris à 50 min avec le RER D), notre agence Maisons France Confort Beauvais est ravie de vous présenter cette maison de 5 pièces de 80 m² en vente bénéficiant d'un emplacement privilégié dans Cambronne-lès-Clermont (60290).
Il s'agit d'une maison de 2 niveaux. Elle comporte trois chambres, une cuisine et une salle de bains. Cette maison est neuve.
Le terrain du bien s'étend sur 507 m².
La maison est située dans un secteur convoité. On y trouve une école primaire. Niveau transports, il y a la station de RER Creil (ligne D) ainsi que 12 gares à moins de 10 minutes en voiture. La nationale N31 est accessible à 7 km et Beauvais se situe à 26 km. On trouve une bibliothèque et une boulangerie dans les environs.
Elle est à vendre pour la somme de 262 000 €.
Prenez contact avec notre agence (BONELLO Fabrice : 06-09-50-50-09) pour plus d'informations sur la maison.
Mentions légales
Terrain proposé par un partenaire foncier selon disponibilités et autorisation de publicité au prix de 89 500 €. Hors droit d'enregistrement et frais de notaire. Terrain + Maison proposés au prix de 262 000 € (Hors branchements et raccordements, papiers peints, peintures, revêtement de sol dans les chambres. Tarif modifiable sans préavis). Etiquette énergie : A. Différents modèles disponibles pour ce terrain. Assurances et garanties du constructeur (RC professionnelle, décennale, dommage ouvrage, garantie de remboursement de l'acompte, livraison à prix et délai convenu) : https://www.maisons-france-confort.fr/mentions-legales/. HEXAOM Services est enregistré auprès de l'ORIAS en tant que Courtier en financement, Niveau 1, sous le numéro 14001345.Agence Maisons France Confort de Beauvais (60000)
- Téléphone :
- 03 44 04 40 04
- Adressse :
- 42 rue Pierre Jacoby
60000 Beauvais, France
