Maison neuve à
Cocumont
(47250) Référence :
AL2481903_4
Prix du projet : Maison avec Terrain
prix 283 000 €
- 7 pièces
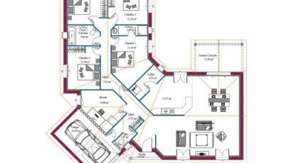
- 4 chambres
- Surface maison 146 m2
Maison F7 (146 m²) à vendre à Cocumont
EMPLACEMENT PRIVILÉGIÉ - MAISON 7 PIÈCES NEUVE
En vente : nous sommes heureux de vous proposer cette maison de 7 pièces de plain-pied de 146 m² et de 738 m² de terrain bénéficiant d'un emplacement privilégié dans Cocumont (47250).
Elle compte quatre chambres, une cuisine et deux salles de bains. La maison est neuve.
Cette maison se trouve dans un secteur recherché. On y trouve une école primaire. L'autoroute A62 est accessible à 9 km. Il y a un tennis, une bibliothèque, deux boulangeries, deux commerces, une boucherie-charcuterie, un bureau de poste et une épicerie dans les environs.
Elle est à vendre pour la somme de 283 000 €.
Prenez contact avec notre agence (Alexandra LAGARDERE : O6-61-54-08-10) pour toute information sur la maison ou sur les modalités de vente. Faites de vos projets immobiliers une réalité avec Maisons de la Côte Atlantique Marmande.
Mentions légales
Idée de réalisation en modèle prêt à décorer sur l'un de nos terrains partenaires, sous réserve de disponibilités. Voir détails en agence.Agence Maisons de la Côte Atlantique de Marmande (47200)
- Téléphone :
- 05 53 84 47 83
- Adressse :
- Route de Bordeaux
47200 Marmande, France
