Maison neuve à
Sendets (33690) Référence : ML2490268_4

Prix du projet : Maison avec Terrain

prix 222 600 €

  • 7 pièces
  • 3 chambres
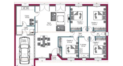
  • Surface maison 90 m2

Maison F7 (90 m²) en vente à Sendets
IDÉALEMENT SITUÉE - MAISON 7 PIÈCES NEUVE
Découvrez cette maison de 7 pièces de plain-pied de 90 m² et de 850 m² de terrain en vente, idéalement située dans Sendets (33690).
Elle propose trois chambres, une cuisine et deux salles de bains. La maison est neuve.
Cette maison se trouve dans un secteur recherché. L'autoroute A62 est accessible à 10 km. Il y a une supérette à proximité de la maison.
Son prix de vente est de 222 600 €.
N'hésitez pas à prendre contact avec Maryne LAGORCE (O6-81-35-86-92) pour plus de renseignements sur la maison. Maisons de la Côte Atlantique Langon est là pour vous accompagner dans tous vos projets immobiliers.

Mentions légales

Idée de réalisation en modèle prêt à décorer sur l'un de nos terrains partenaires, sous réserve de disponibilités. Voir détails en agence.

Contactez l'agence de Langon

05 56 76 82 20

    * Champs obligatoires

    Vos informations sont traitées par HEXAOM et transmises à un conseiller commercial qui vous contactera afin de répondre à votre demande. Les plans et images présentés sur notre site sont la propriété d’HEXAOM et ne peuvent pas être reproduits sans son accord. Pour retrouver notre politique de protection des données personnelles et exercer vos droits conformément à la « loi informatique et liberté » cliquez-ici.