Maison neuve à
Colomiers (31770) Référence : CE2390265_3

Prix du projet : Maison avec Terrain

prix 321 478 €

  • 5 pièces
  • 4 chambres
  • Surface maison 120 m2

Colomiers : maison de 5 pièces (120 m²) à vendre avec l'agence maisons France Confort de Tournefeuille au 05.61.16.47.77
QUARTIER RECHERCHÉ - MAISON 5 PIÈCES NEUVE
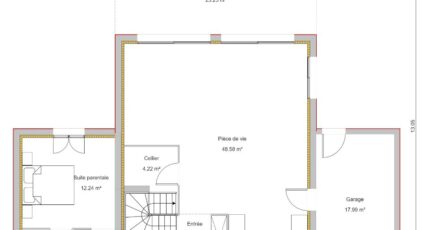
Nous vous proposons cette maison de 5 pièces de 120 m² et de 420 m² de terrain à vendre située dans un secteur prisé de Colomiers (31770).
Cette maison compte 2 niveaux. Elle offre quatre chambres, une cuisine et deux salles de bains. La maison est neuve.
Cette maison se trouve dans un quartier attractif. Il y a plusieurs écoles (maternelle, élémentaire et collège) à moins de 10 minutes à pied, tout comme deux structures d'accueil pour les tout-petits. Côté transports en commun, on trouve la gare Colomiers Lycée International juste à côté. On trouve un accès à la nationale N124 à 1 km. Il y a une bibliothèque, des commerces, un supermarché, des boulangeries, un bureau de poste et trois boucheries-charcuteries dans les environs. Enfin, le marché Place du Languedoc anime le quartier.
Elle est proposée à l'achat pour 321 478 €.
N'hésitez pas à prendre contact avec l'agence maisons France Confort de Tournefeuille au 05.61.16.47.77 pour obtenir de plus amples renseignements sur la maison.

Annonce proposée par un Agent Commercial Partenaire.

Mentions légales

Terrain proposé par un partenaire foncier selon disponibilités et autorisation de publicité au prix de 169 000 €. Hors droit d'enregistrement et frais de notaire. Terrain + Maison proposés au prix de 321 478 € (Hors branchements et raccordements, papiers peints, peintures, revêtement de sol dans les chambres. Tarif modifiable sans préavis). Etiquette énergie : A. Différents modèles disponibles pour ce terrain. Assurances et garanties du constructeur (RC professionnelle, décennale, dommage ouvrage, garantie de remboursement de l'acompte, livraison à prix et délai convenu) : https://www.maisons-france-confort.fr/mentions-legales/. HEXAOM Services est enregistré auprès de l'ORIAS en tant que Courtier en financement, Niveau 1, sous le numéro 14001345.

Contactez l'agence de Tournefeuille

05 61 16 47 77

    * Champs obligatoires

    Vos informations sont traitées par HEXAOM et transmises à un conseiller commercial qui vous contactera afin de répondre à votre demande. Les plans et images présentés sur notre site sont la propriété d’HEXAOM et ne peuvent pas être reproduits sans son accord. Pour retrouver notre politique de protection des données personnelles et exercer vos droits conformément à la « loi informatique et liberté » cliquez-ici.