Maison neuve à
Colomiers (31770) Référence : SP2484255_4

Prix du projet : Maison avec Terrain

prix 760 000 €

  • 5 pièces
  • 3 chambres
  • Surface maison 150 m2

VENTE : maison de 5 pièces (150 m²) à Colomiers
MAISON 5 PIÈCES NEUVE
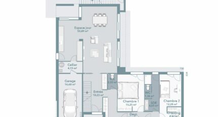
Ayez le coup de coeur pour cette maison de 5 pièces de 150 m² en vente à Colomiers (31770). Son intérieur offre trois chambres, une cuisine et deux salles de bains.
Le terrain de la propriété est de 420 m².
Cette maison comporte 2 niveaux. Elle est neuve.
Il y a plusieurs écoles (maternelle, élémentaire et collège) à moins de 10 minutes à pied, tout comme deux structures d'accueil pour la petite enfance. Niveau transports en commun, on trouve la gare Colomiers Lycée International juste à côté. Il y a un accès à la nationale N124 à 1 km. Il y a une bibliothèque, des commerces, des boucheries-charcuteries, un bureau de poste et une épicerie dans les environs. Enfin, le marché Place du Languedoc anime les environs.
Elle est à vendre pour la somme de 760 000 €.
Contactez nous pour toute question sur cette propriété.

Annonce proposée par un Agent Commercial Partenaire.

Mentions légales

Terrain proposé par un partenaire foncier selon disponibilités et autorisation de publicité au prix de 170 000 €. Hors droit d'enregistrement et frais de notaire. Terrain + Maison proposés au prix de 760 000 € (Hors branchements et raccordements, papiers peints, peintures, revêtement de sol dans les chambres. Tarif modifiable sans préavis). Etiquette énergie : A. Différents modèles disponibles pour ce terrain. Assurances et garanties du constructeur (RC professionnelle, décennale, dommage ouvrage, garantie de remboursement de l'acompte, livraison à prix et délai convenu) : https://www.maisons-france-confort.fr/mentions-legales/. HEXAOM Services est enregistré auprès de l'ORIAS en tant que Courtier en financement, Niveau 1, sous le numéro 14001345.

Contactez l'agence de Tournefeuille

05 61 16 47 77

    * Champs obligatoires

    Vos informations sont traitées par HEXAOM et transmises à un conseiller commercial qui vous contactera afin de répondre à votre demande. Les plans et images présentés sur notre site sont la propriété d’HEXAOM et ne peuvent pas être reproduits sans son accord. Pour retrouver notre politique de protection des données personnelles et exercer vos droits conformément à la « loi informatique et liberté » cliquez-ici.