Maison neuve à
Commequiers
(85220) Référence :
NR2423209_1
Prix du projet : Maison avec Terrain
prix 159 900 €
- 2 pièces
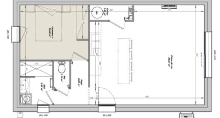
- 1 chambre
- Surface maison 50 m2
VENTE d'une maison de 2 pièces (50 m²) à Commequiers
EMPLACEMENT PRIVILÉGIÉ - MAISON 2 PIÈCES NEUVE
En vente : à 12 km de l'océan Atlantique, bénéficiant d'un emplacement privilégié dans Commequiers (85220), LMP Constructeur Saint-Gilles-Croix-de-Vie vous propose cette maison de 2 pièces de plain-pied de 50 m². Elle est composée d'une chambre, d'une cuisine et d'une salle de bains.
Le terrain du bien est de 429 m².
La maison est neuve.
Cette maison est située dans un secteur recherché. Il y a l'École Primaire Publique Robert Doisneau et l'École Primaire Privée Mixte Saint Pierre à moins de 10 minutes à pied. Côté transports en commun, on trouve la gare Challans à moins de 10 minutes en voiture. Il y a un tennis, deux commerces, une boulangerie, un supermarché et une poissonnerie dans les environs.
Elle est proposée à l'achat pour 159 900 €.
Contactez Nicolas RISSELIN (06-80-33-03-82) pour plus de renseignements sur la maison, sur les modalités de vente ou sur les démarches à suivre. LMP Constructeur Saint-Gilles-Croix-de-Vie est là pour vous accompagner dans tous vos projets immobiliers.
Mentions légales
Terrain proposé par un partenaire foncier selon disponibilités et autorisation de publicité au prix de 68 100 €. Hors droit d'enregistrement et frais de notaire. Terrain + Maison proposés au prix de 159 900 € (Hors branchements et raccordements, papiers peints, peintures, revêtement de sol dans les chambres. Tarif modifiable sans préavis). Etiquette énergie : A. Différents modèles disponibles pour ce terrain. Assurances et garanties du constructeur (RC professionnelle, décennale, dommage ouvrage, garantie de remboursement de l'acompte, livraison à prix et délai convenu) : https://www.lmp-constructeur.com/mentions-legales/.Agence Logis du Marais Poitevin de Saint-Gilles-Croix-de-Vie (85800)
- Téléphone :
- 02 51 55 34 29
- Adressse :
- 5 rue Gautté
85800 Saint-Gilles-Croix-de-Vie, France
