Maison neuve à
Commequiers
(85220) Référence :
NR2423209_8
Prix du projet : Maison avec Terrain
prix 215 900 €
- 2 pièces
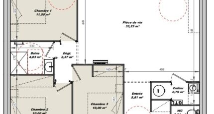
- 3 chambres
- Surface maison 61 m2
Maison F2 (61 m²) en vente à Commequiers
EMPLACEMENT PRIVILÉGIÉ - MAISON 2 PIÈCES NEUVE
À vendre : localisée à 12 km de l'océan Atlantique, nous sommes heureux de vous présenter cette maison de 2 pièces de plain-pied de 61 m² et de 427 m² de terrain, bénéficiant d'un emplacement d'exception dans Commequiers (85220).
Elle est composée de trois chambres, d'une cuisine et d'une salle de bains. La maison est neuve.
Cette maison est située dans un quartier convoité. L'École Primaire Publique Robert Doisneau et l'École Primaire Privée Mixte Saint Pierre sont implantées à moins de 10 minutes à pied. Côté transports en commun, il y a la gare Challans à moins de 10 minutes en voiture. On trouve un tennis, deux commerces et une poissonnerie à quelques minutes du logement.
Elle est à vendre pour la somme de 215 900 €.
Contactez notre agence (RISSELIN Nicolas : 06-80-33-03-82) pour tout renseignement sur la propriété ou sur les démarches à suivre. LMP Constructeur Saint-Gilles-Croix-de-Vie est là pour vous accompagner à toutes les étapes de votre projet.
Mentions légales
Terrain proposé par un partenaire foncier selon disponibilités et autorisation de publicité au prix de 68 100 €. Hors droit d'enregistrement et frais de notaire. Terrain + Maison proposés au prix de 215 900 € (Hors branchements et raccordements, papiers peints, peintures, revêtement de sol dans les chambres. Tarif modifiable sans préavis). Etiquette énergie : A. Différents modèles disponibles pour ce terrain. Assurances et garanties du constructeur (RC professionnelle, décennale, dommage ouvrage, garantie de remboursement de l'acompte, livraison à prix et délai convenu) : https://www.lmp-constructeur.com/mentions-legales/.Agence Logis du Marais Poitevin de Saint-Gilles-Croix-de-Vie (85800)
- Téléphone :
- 02 51 55 34 29
- Adressse :
- 5 rue Gautté
85800 Saint-Gilles-Croix-de-Vie, France
