Maison neuve à
Condécourt
(95450) Référence :
CY2466866_1
Prix du projet : Maison avec Terrain
prix 310 000 €
- 5 pièces
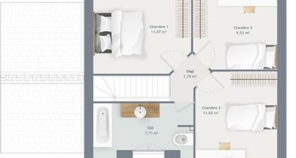
- 3 chambres
- Surface maison 80 m2
Condécourt : maison T5 (80 m²) en vente
IDÉALEMENT SITUÉE - MAISON 5 PIÈCES NEUVE
À deux pas du Transilien J (gare de Vaux-sur-Seine, 35 min de Paris), nous vous présentons en vente, idéalement située dans Condécourt (95450), cette maison de 5 pièces de 80 m². Son intérieur dispose de trois chambres, d'une cuisine et d'une salle de bains.
Le terrain de la maison s'étend sur 277 m².
C'est une maison de 2 niveaux. Elle est neuve.
Cette propriété se trouve dans un quartier convoité. Une école primaire y est implantée. Niveau transports en commun, il y a la ligne de RER A (Cergy Le Haut) ainsi que 16 gares à moins de 10 minutes en voiture. On trouve un tennis dans les environs.
Elle est à vendre pour la somme de 310 000 €.
Prenez contact avec Cedric YAHIAOUI (tél : 06-66-57-00-63) pour toute information sur la maison ou sur les démarches à suivre. Maisons France Confort Mareuil-lès-Meaux vous accompagne dans tous vos projets immobiliers et dans toutes vos démarches.
Annonce proposée par un Agent Commercial Partenaire.
Mentions légales
Terrain proposé par un partenaire foncier selon disponibilités et autorisation de publicité au prix de 120 000 €. Hors droit d'enregistrement et frais de notaire. Terrain + Maison proposés au prix de 310 000 € (Hors branchements et raccordements, papiers peints, peintures, revêtement de sol dans les chambres. Tarif modifiable sans préavis). Etiquette énergie : A. Différents modèles disponibles pour ce terrain. Assurances et garanties du constructeur (RC professionnelle, décennale, dommage ouvrage, garantie de remboursement de l'acompte, livraison à prix et délai convenu) : https://www.maisons-france-confort.fr/mentions-legales/. HEXAOM Services est enregistré auprès de l'ORIAS en tant que Courtier en financement, Niveau 1, sous le numéro 14001345.Agence Maisons France Confort de Mareuil-lès-Meaux (77100)
- Téléphone :
- 01 60 09 28 30
- Adressse :
- Domexpo Est Village La Hayette
77100 Mareuil-lès-Meaux, France
