Maison neuve à
Congénies
(30111) Référence :
LR2404129_1
Prix du projet : Maison avec Terrain
prix 347 000 €
- 5 pièces
- 3 chambres
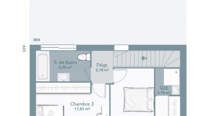
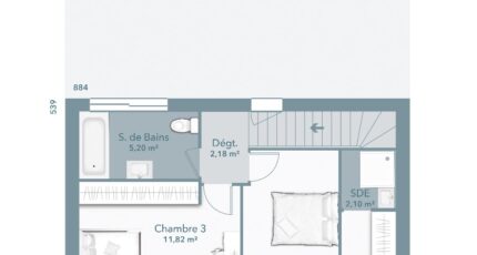
- Surface maison 92 m2
Congénies : maison F5 (92 m²) à vendre
IDÉALEMENT SITUÉE - MAISON 5 PIÈCES NEUVE
À Congénies (30111) village de la Vaunage, situé à 10 minutes de Sommières, 25 minutes de Lunel, 25 minutes de Nîmes, venez découvrir cette maison de 5 pièces de 92 m² idéalement située dans Congénies (30111).
Il s'agit d'une maison de 2 niveaux. Elle inclut trois chambres, une cuisine et trois salles de bains. La maison est neuve.
Le terrain du bien s'étend sur 273 m².
La maison se trouve dans un secteur attractif. Des écoles maternelles et élémentaires y sont implantées. Niveau transports en commun, il y a trois gares (Vergèze-Codognan, Gallargues-le-Montueux et Uchaud) à moins de 10 minutes en voiture. L'autoroute A9 est accessible à 6 km. On trouve une bibliothèque, un tennis, deux commerces, une boulangerie, une poissonnerie, une boucherie-charcuterie et un bureau de poste à proximité.
Elle est à vendre pour la somme de 347 000 €.
Contactez notre agence (ROMERA Lionel : 06-30-39-77-79) pour toute question sur le bien.
Annonce proposée par un Agent Commercial Partenaire.
Mentions légales
Terrain proposé par un partenaire foncier selon disponibilités et autorisation de publicité au prix de 128 000 €. Hors droit d'enregistrement et frais de notaire. Terrain + Maison proposés au prix de 347 000 € (Hors branchements et raccordements, papiers peints, peintures, revêtement de sol dans les chambres. Tarif modifiable sans préavis). Etiquette énergie : A. Différents modèles disponibles pour ce terrain. Assurances et garanties du constructeur (RC professionnelle, décennale, dommage ouvrage, garantie de remboursement de l'acompte, livraison à prix et délai convenu) : https://www.maisons-france-confort.fr/mentions-legales/. HEXAOM Services est enregistré auprès de l'ORIAS en tant que Courtier en financement, Niveau 1, sous le numéro 14001345.Agence Maisons France Confort de Montpellier (34000)
- Téléphone :
- 04 67 64 85 11
- Adressse :
- 48, impasse Louis Ferdinand Herold
34000 Montpellier, France
