Maison neuve à
Congis-sur-Thérouanne (77440) Référence : CY2406853_1

Prix du projet : Maison avec Terrain

prix 289 500 €

  • 5 pièces
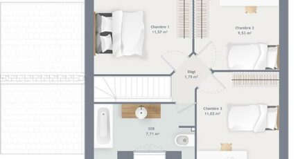
  • 3 chambres
  • Surface maison 80 m2

VENTE : maison F5 (80 m²) à Congis-sur-Thérouanne
IDÉALEMENT SITUÉE - MAISON 5 PIÈCES NEUVE
À vendre : à côté du Transilien P (gare d'Isles-Armentières-Congis, 40 min de Paris), notre agence Maisons France Confort Mareuil-lès-Meaux est ravie de vous proposer cette maison de 5 pièces de 80 m² et de 1 014 m² de terrain idéalement située dans Congis-sur-Thérouanne (77440). Son intérieur offre trois chambres, une cuisine et une salle de bains.
C'est une maison de 2 niveaux. Elle est neuve.
La maison se trouve dans un quartier prisé. Des écoles maternelles et élémentaires sont implantées à moins de 10 minutes à pied, tout comme, comme l'École Maternelle Casse-Noisettes. Niveau transports, il y a cinq gares à moins de 10 minutes en voiture. On trouve un tennis, une boulangerie, un commerce, un bureau de poste et une boucherie-charcuterie à proximité.
Elle est proposée à l'achat pour 289 500 €.
Contactez Cedric YAHIAOUI (tél : 06-66-57-00-63) pour toute question sur la propriété ou sur les modalités de vente. Maisons France Confort Mareuil-lès-Meaux vous accompagne dans tous vos projets immobiliers et à toutes les étapes de l'achat.

Annonce proposée par un Agent Commercial Partenaire.

Mentions légales

Terrain proposé par un partenaire foncier selon disponibilités et autorisation de publicité au prix de 143 500 €. Hors droit d'enregistrement et frais de notaire. Terrain + Maison proposés au prix de 289 500 € (Hors branchements et raccordements, papiers peints, peintures, revêtement de sol dans les chambres. Tarif modifiable sans préavis). Etiquette énergie : A. Différents modèles disponibles pour ce terrain. Assurances et garanties du constructeur (RC professionnelle, décennale, dommage ouvrage, garantie de remboursement de l'acompte, livraison à prix et délai convenu) : https://www.maisons-france-confort.fr/mentions-legales/. HEXAOM Services est enregistré auprès de l'ORIAS en tant que Courtier en financement, Niveau 1, sous le numéro 14001345.

Contactez l'agence de Mareuil-lès-Meaux

01 60 09 28 30

    * Champs obligatoires

    Vos informations sont traitées par HEXAOM et transmises à un conseiller commercial qui vous contactera afin de répondre à votre demande. Les plans et images présentés sur notre site sont la propriété d’HEXAOM et ne peuvent pas être reproduits sans son accord. Pour retrouver notre politique de protection des données personnelles et exercer vos droits conformément à la « loi informatique et liberté » cliquez-ici.