Maison neuve à
Congis-sur-Thérouanne
(77440) Référence :
CY2434728_5
Prix du projet : Maison avec Terrain
prix 310 000 €
- 5 pièces
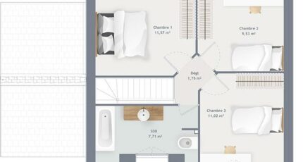
- 3 chambres
- Surface maison 80 m2
Congis-sur-Thérouanne : maison F5 (80 m²) en vente
PROCHE DE MEAUX - MAISON 5 PIÈCES NEUVE
En vente : à deux pas du Transilien P (gare d'Isles-Armentières-Congis, 40 min de Paris), à Congis-sur-Thérouanne (77440), nous sommes heureux de vous proposer cette maison de 5 pièces de 80 m² et de 1 014 m² de terrain.
Il s'agit d'une maison de 2 niveaux. Elle dispose de trois chambres, d'une cuisine et d'une salle de bains. Cette maison est neuve.
Des écoles maternelles et élémentaires sont implantées à moins de 10 minutes à pied, tout comme dont l'École Maternelle Casse-Noisettes. Côté transports, on trouve cinq gares à moins de 10 minutes en voiture. Il y a un tennis, une boulangerie, un commerce, un bureau de poste et une boucherie-charcuterie dans les environs.
Elle est proposée à l'achat pour 310 000 €.
N'hésitez pas à prendre contact avec notre agence (YAHIAOUI Cedric : 06-66-57-00-63) pour obtenir de plus amples informations sur la maison.
Annonce proposée par un Agent Commercial Partenaire.
Mentions légales
Terrain proposé par un partenaire foncier selon disponibilités et autorisation de publicité au prix de 143 500 €. Hors droit d'enregistrement et frais de notaire. Terrain + Maison proposés au prix de 310 000 € (Hors branchements et raccordements, papiers peints, peintures, revêtement de sol dans les chambres. Tarif modifiable sans préavis). Etiquette énergie : A. Différents modèles disponibles pour ce terrain. Assurances et garanties du constructeur (RC professionnelle, décennale, dommage ouvrage, garantie de remboursement de l'acompte, livraison à prix et délai convenu) : https://www.maisons-france-confort.fr/mentions-legales/. HEXAOM Services est enregistré auprès de l'ORIAS en tant que Courtier en financement, Niveau 1, sous le numéro 14001345.Agence Maisons France Confort de Magny-le-Hongre (77700)
- Téléphone :
- 01 84 80 92 96
- Adressse :
- 11 rue de Courtalin
77700 Magny-le-Hongre, France
