Maison neuve à
Corronsac
(31450) Référence :
PC2434728_3
Prix du projet : Maison avec Terrain
prix 329 781 €
- 5 pièces
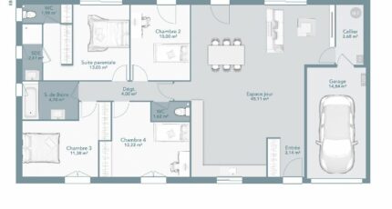
- 4 chambres
- Surface maison 113 m2
Espace et Sérénité : La villa familiale par excellence à Corronsac.
Sur ce beau terrain de 700 m², découvrez l'OPTIMA 113, une réalisation équilibrée pensée pour les familles en quête d'espace.
Un volume rare : Ce modèle propose quatre chambres, permettant à chaque membre de la famille de disposer de son propre univers.
Confort parental : Suite dédiée aux parents offrant une véritable bulle d'intimité.
Fonctionnalité : Garage intégré, cellier astucieux et optimisation de la lumière naturelle.
Sur-mesure : Nos experts réalisent vos plans sur-mesure pour s'adapter précisément à vos besoins.
Prix du projet (Terrain + Maison + Terrassement) : 329 781 €
Infos : Agence Maisons France Confort Saint-Orens au 05.61.73.11.84
Annonce proposée par un Agent Commercial Partenaire.
Mentions légales
Terrain proposé par un partenaire foncier selon disponibilités et autorisation de publicité au prix de 140 000 €. Hors droit d'enregistrement et frais de notaire. Terrain + Maison proposés au prix de 329 781 € (Hors branchements et raccordements, papiers peints, peintures, revêtement de sol dans les chambres. Tarif modifiable sans préavis). Etiquette énergie : A. Différents modèles disponibles pour ce terrain. Assurances et garanties du constructeur (RC professionnelle, décennale, dommage ouvrage, garantie de remboursement de l'acompte, livraison à prix et délai convenu) : https://www.maisons-france-confort.fr/mentions-legales/. HEXAOM Services est enregistré auprès de l'ORIAS en tant que Courtier en financement, Niveau 1, sous le numéro 14001345.Agence Maisons France Confort de Saint-Orens-de-Gameville (31650)
- Téléphone :
- 05 61 73 11 84
- Adressse :
- 1 rue de la plaine
31650 Saint-Orens-de-Gameville, France
