Maison neuve à
Corronsac (31450) Référence : PC2434728_4

Prix du projet : Maison avec Terrain

prix 380 289 €

  • 5 pièces
  • 4 chambres
  • Surface maison 120 m2

Élégance et confort pour ce projet de construction d'envergure.
L'UTOPIA 121 se distingue par ses volumes généreux et son architecture soignée.

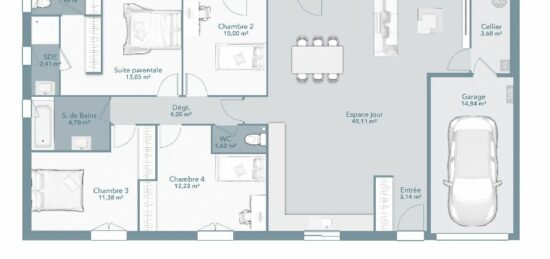
Pièce de vie : Le vaste séjour constitue le coeur de la maison, offrant une luminosité constante grâce à de larges ouvertures.

Aménagement : La maison dispose de quatre chambres et de deux salles d'eau modernes pour une fluidité parfaite au quotidien.

Vie extérieure : Une terrasse couverte intégrée au bâti permet de profiter de l'extérieur en toute saison.

Qualité : Projet certifié RE 2020 garantissant une consommation énergétique maîtrisée.

Contact : Agence Maisons France Confort Saint-Orens au 05.61.73.11.84

🛠 L'Engagement Maisons France Confort
En choisissant le leader français de la construction, vous bénéficiez de garanties solides

Plans sur-mesure : Ce modèle est entièrement personnalisable pour s'adapter à votre mode de vie.

Accompagnement : Nos dessinateurs adaptent le projet aux spécificités de votre terrain.

Sérénité : Une construction respectant les dernières normes RE 2020

Annonce proposée par un Agent Commercial Partenaire.

Mentions légales

Terrain proposé par un partenaire foncier selon disponibilités et autorisation de publicité au prix de 140 000 €. Hors droit d'enregistrement et frais de notaire. Terrain + Maison proposés au prix de 380 289 € (Hors branchements et raccordements, papiers peints, peintures, revêtement de sol dans les chambres. Tarif modifiable sans préavis). Etiquette énergie : A. Différents modèles disponibles pour ce terrain. Assurances et garanties du constructeur (RC professionnelle, décennale, dommage ouvrage, garantie de remboursement de l'acompte, livraison à prix et délai convenu) : https://www.maisons-france-confort.fr/mentions-legales/. HEXAOM Services est enregistré auprès de l'ORIAS en tant que Courtier en financement, Niveau 1, sous le numéro 14001345.

Contactez l'agence de Saint-Orens-de-Gameville

05 61 73 11 84

    * Champs obligatoires

    Vos informations sont traitées par HEXAOM et transmises à un conseiller commercial qui vous contactera afin de répondre à votre demande. Les plans et images présentés sur notre site sont la propriété d’HEXAOM et ne peuvent pas être reproduits sans son accord. Pour retrouver notre politique de protection des données personnelles et exercer vos droits conformément à la « loi informatique et liberté » cliquez-ici.