Maison neuve à
Couffoulens
(11250) Référence :
SE2481205_6
Prix du projet : Maison avec Terrain
prix 394 607 €
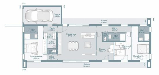
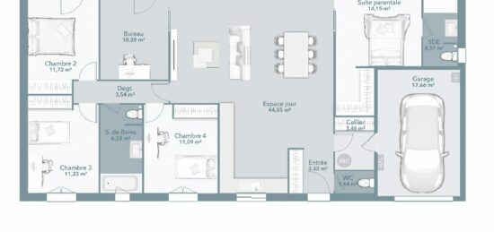
- 6 pièces
- 4 chambres
- Surface maison 115 m2
VENTE : maison F6 (115 m²) à Couffoulens
EMPLACEMENT PRIVILÉGIÉ - MAISON 6 PIÈCES NEUVE
À vendre à quelques kilomètres de Carcassonne, notre agence Maisons France Confort Carcassonne est ravie de vous proposer cette maison de 6 pièces de plain-pied de 115 m² bénéficiant d'un emplacement privilégié dans Couffoulens (11250).
Conçue de plain-pied, elle compte quatre chambres, une cuisine et deux salles de bains. Cette maison est neuve.
Le terrain de la propriété est de 440 m².
La propriété est située dans un quartier recherché. On y trouve une école primaire. Niveau transports, on trouve la gare Couffoulens-Leuc à moins de 10 minutes à pied. Il y a un accès à l'autoroute A61 à 5 km. Il y a un tennis à quelques minutes à peine.
Son prix de vente est de 394 607 €.
Contactez notre constructeur (Stéphane EMBID : 06-65-50-56-62) pour tout renseignement sur la maison et sur les démarches à suivre.
Mentions légales
Terrain proposé par un partenaire foncier selon disponibilités et autorisation de publicité au prix de 52 400 €. Hors droit d'enregistrement et frais de notaire. Terrain + Maison proposés au prix de 394 607 € (Hors branchements et raccordements, papiers peints, peintures, revêtement de sol dans les chambres. Tarif modifiable sans préavis). Etiquette énergie : A. Différents modèles disponibles pour ce terrain. Assurances et garanties du constructeur (RC professionnelle, décennale, dommage ouvrage, garantie de remboursement de l'acompte, livraison à prix et délai convenu) : https://www.maisons-france-confort.fr/mentions-legales/. HEXAOM Services est enregistré auprès de l'ORIAS en tant que Courtier en financement, Niveau 1, sous le numéro 14001345.Agence Maisons France Confort de Carcassonne (11000)
- Téléphone :
- 04 68 47 39 25
- Adressse :
- 73 bis avenue du Général Leclerc
11000 Carcassonne, France
