Maison neuve à
Carcassonne
(11000) Référence :
FM2450791_1
Prix du projet : Maison avec Terrain
prix 285 000 €
- 6 pièces
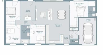
- 5 chambres
- Surface maison 125 m2
Berriac : maison T6 (125 m²) à vendre
IDÉALEMENT SITUÉE - MAISON 6 PIÈCES NEUVE
À vendre : localisée à deux pas de Carcassonne, laissez vous charmer par, idéalement située dans Berriac (11000), cette maison de 6 pièces de 125 m² avec vue dégagée.
C'est une maison de plain-pied. Son intérieur inclut cinq chambres, une cuisine et deux salles de bains. La maison est neuve.
Le terrain de la propriété est de 1 810 m².
Cette maison se trouve dans un secteur convoité. Des établissements scolaires de tous niveaux sont implantés à moins de 10 minutes en voiture, tout comme quatre structures d'accueil pour les tout-petits à moins de 10 minutes à pied. Niveau transports en commun, on trouve la gare Carcassonne à moins de 10 minutes en voiture. Il y a un accès à l'autoroute A61 à 2 km. Il y a des tennis, des bassins de natation, trois bibliothèques, des commerces, des boulangeries, des supermarchés, quatre supérettes et des bureaux de poste à quelques minutes.
Elle est proposée à l'achat pour 285 000 €.
Prenez contact avec notre agence (MAGERE Frédéric : 06-40-94-56-74) pour plus de renseignements sur la maison. Maisons France Confort Carcassonne est là pour vous accompagner à toutes les étapes de votre projet.
Mentions légales
Terrain proposé par un partenaire foncier selon disponibilités et autorisation de publicité au prix de 95 400 €. Hors droit d'enregistrement et frais de notaire. Terrain + Maison proposés au prix de 285 000 € (Hors branchements et raccordements, papiers peints, peintures, revêtement de sol dans les chambres. Tarif modifiable sans préavis). Etiquette énergie : A. Différents modèles disponibles pour ce terrain. Assurances et garanties du constructeur (RC professionnelle, décennale, dommage ouvrage, garantie de remboursement de l'acompte, livraison à prix et délai convenu) : https://www.maisons-france-confort.fr/mentions-legales/. HEXAOM Services est enregistré auprès de l'ORIAS en tant que Courtier en financement, Niveau 1, sous le numéro 14001345.Agence Maisons France Confort de Carcassonne (11000)
- Téléphone :
- 04 68 47 39 25
- Adressse :
- 73 bis avenue du Général Leclerc
11000 Carcassonne, France
