Maison neuve à
Courcelles-en-Bassée
(77126) Référence :
CY2435569_1
Prix du projet : Maison avec Terrain
prix 211 300 €
- 5 pièces
- 3 chambres
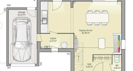
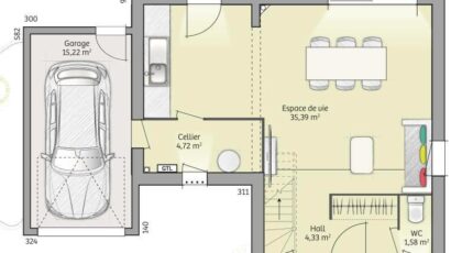
- Surface maison 90 m2
Maison T5 (90 m²) en vente à Courcelles-en-Bassée
MAISON 5 PIÈCES NEUVE - PROCHE DE SENS
À vendre : au pied du Transilien R (gare de Montereau, 60 min de Paris), nous vous proposons à Courcelles-en-Bassée (77126), cette maison de 5 pièces de 90 m² et de 477 m² de terrain. Elle offre trois chambres, une cuisine et une salle de bains.
Cette maison comporte 2 niveaux. Elle est neuve.
Niveau transports, il y a deux gares (Villeneuve-la-Guyard et Montereau) à moins de 10 minutes en voiture. On trouve un tennis dans les environs.
Son prix de vente est de 211 300 €.
Contactez notre agence (Cedric YAHIAOUI : 06-66-57-00-63) pour toute information sur cette maison, sur les modalités de vente ou sur les démarches à suivre.
Annonce proposée par un Agent Commercial Partenaire.
Mentions légales
Terrain proposé par un partenaire foncier selon disponibilités et autorisation de publicité au prix de 51 300 €. Hors droit d'enregistrement et frais de notaire. Terrain + Maison proposés au prix de 211 300 € (Hors branchements et raccordements, papiers peints, peintures, revêtement de sol dans les chambres. Tarif modifiable sans préavis). Etiquette énergie : A. Différents modèles disponibles pour ce terrain. Assurances et garanties du constructeur (RC professionnelle, décennale, dommage ouvrage, garantie de remboursement de l'acompte, livraison à prix et délai convenu) : https://www.maisons-france-confort.fr/mentions-legales/. HEXAOM Services est enregistré auprès de l'ORIAS en tant que Courtier en financement, Niveau 1, sous le numéro 14001345.Agence Maisons France Confort de Magny-le-Hongre (77700)
- Téléphone :
- 01 84 80 92 96
- Adressse :
- 11 rue de Courtalin
77700 Magny-le-Hongre, France
