Maison neuve à
Salins (77148) Référence : DC2488325_1

Prix du projet : Maison avec Terrain

prix 286 499 €

  • 5 pièces
  • 3 chambres
  • Surface maison 80 m2

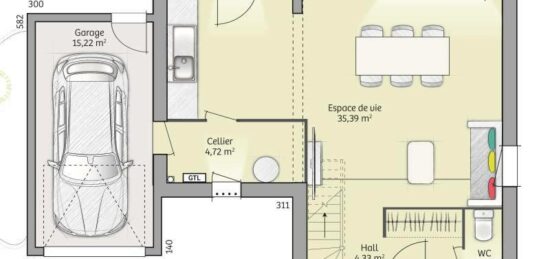
VENTE d'une maison T5 (80 m²) à Salins
PROCHE DE MELUN - MAISON 5 PIÈCES NEUVE
À deux pas du Transilien R (gare de Montereau, 60 min de Paris), Maisons France Confort Melun vous présente cette maison de 5 pièces de 80 m² et de 553 m² de terrain à Salins (77148).
Cette maison comporte 2 niveaux. Son intérieur se divise en trois chambres, une cuisine et une salle de bains. Cette maison est neuve.
Une école primaire est implantée dans le quartier. Niveau transports en commun, il y a les gares Montereau et Villeneuve-la-Guyard à moins de 10 minutes en voiture. On trouve un tennis et une épicerie dans les environs.
Elle est à vendre pour la somme de 286 499 €.
Prenez contact avec notre agence (CORDIER David : 06-10-79-38-15) pour toute question sur cette maison. Faites de vos projets immobiliers une réalité avec Maisons France Confort Melun.

Annonce proposée par un Agent Commercial Partenaire.

Mentions légales

Terrain proposé par un partenaire foncier selon disponibilités et autorisation de publicité au prix de 77 800 €. Hors droit d'enregistrement et frais de notaire. Terrain + Maison proposés au prix de 286 499 € (Hors branchements et raccordements, papiers peints, peintures, revêtement de sol dans les chambres. Tarif modifiable sans préavis). Etiquette énergie : A. Différents modèles disponibles pour ce terrain. Assurances et garanties du constructeur (RC professionnelle, décennale, dommage ouvrage, garantie de remboursement de l'acompte, livraison à prix et délai convenu) : https://www.maisons-france-confort.fr/mentions-legales/. HEXAOM Services est enregistré auprès de l'ORIAS en tant que Courtier en financement, Niveau 1, sous le numéro 14001345.

Contactez l'agence de Melun

01 64 14 43 20

    * Champs obligatoires

    Vos informations sont traitées par HEXAOM et transmises à un conseiller commercial qui vous contactera afin de répondre à votre demande. Les plans et images présentés sur notre site sont la propriété d’HEXAOM et ne peuvent pas être reproduits sans son accord. Pour retrouver notre politique de protection des données personnelles et exercer vos droits conformément à la « loi informatique et liberté » cliquez-ici.