Maison neuve à
Coutevroult
(77580) Référence :
CY2431635_1
Prix du projet : Maison avec Terrain
prix 349 000 €
- 5 pièces
- 3 chambres
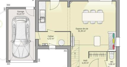
- Surface maison 90 m2
VENTE : maison T5 (90 m²) à Coutevroult
MAISON 5 PIÈCES NEUVE - PROCHE DE MONTREUIL
À côté du Transilien P (gare d'Esbly, 30 min de Paris), Maisons France Confort Magny-le-Hongre vous propose cette maison de 5 pièces de 90 m² en vente à Coutevroult (77580).
C'est une maison de 2 niveaux. Son intérieur dispose de trois chambres, d'une cuisine et d'une salle de bains. La maison est neuve.
Le terrain du bien s'étend sur 299 m².
L'École Primaire Pierre Falke est implantée à moins de 10 minutes à pied. Niveau transports en commun, il y a la ligne de RER A (Chessy-Marne-La-Vallée) ainsi que huit gares à moins de 10 minutes en voiture. On trouve deux commerces dans les environs.
Son prix de vente est de 349 000 €.
Contactez Cedric YAHIAOUI (06-66-57-00-63) pour toute question sur la maison. Maisons France Confort Magny-le-Hongre est là pour vous accompagner à toutes les étapes de l'achat.
Annonce proposée par un Agent Commercial Partenaire.
Mentions légales
Terrain proposé par un partenaire foncier selon disponibilités et autorisation de publicité au prix de 189 000 €. Hors droit d'enregistrement et frais de notaire. Terrain + Maison proposés au prix de 349 000 € (Hors branchements et raccordements, papiers peints, peintures, revêtement de sol dans les chambres. Tarif modifiable sans préavis). Etiquette énergie : A. Différents modèles disponibles pour ce terrain. Assurances et garanties du constructeur (RC professionnelle, décennale, dommage ouvrage, garantie de remboursement de l'acompte, livraison à prix et délai convenu) : https://www.maisons-france-confort.fr/mentions-legales/. HEXAOM Services est enregistré auprès de l'ORIAS en tant que Courtier en financement, Niveau 1, sous le numéro 14001345.Agence Maisons France Confort de Magny-le-Hongre (77700)
- Téléphone :
- 01 84 80 92 96
- Adressse :
- 11 rue de Courtalin
77700 Magny-le-Hongre, France
