Maison neuve à
Coutevroult
(77580) Référence :
CY2431593_1
Prix du projet : Maison avec Terrain
prix 349 000 €
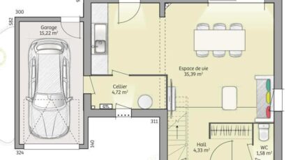
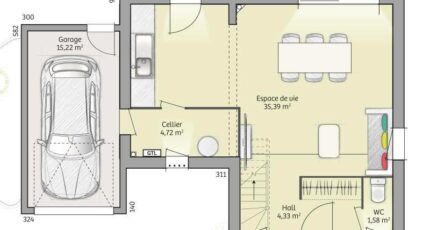
- 5 pièces
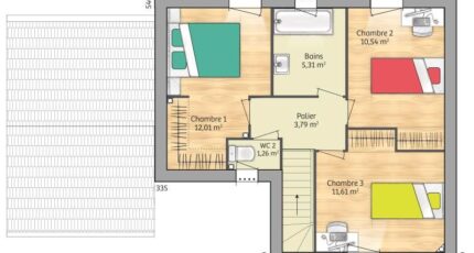
- 3 chambres
- Surface maison 90 m2
Coutevroult : maison de 5 pièces (90 m²) à vendre
PROCHE DE MONTREUIL - MAISON 5 PIÈCES NEUVE
À proximité du Transilien P (gare d'Esbly, 30 min de Paris), en vente à Coutevroult (77580), nous sommes ravis de vous présenter cette maison de 5 pièces de 90 m² et de 326 m² de terrain.
Cette maison comporte 2 niveaux. Son intérieur compte trois chambres, une cuisine et une salle de bains. La maison est neuve.
L'École Primaire Pierre Falke est implantée à moins de 10 minutes à pied. Niveau transports en commun, on trouve la ligne de RER A (Chessy-Marne-La-Vallée) ainsi que huit gares à moins de 10 minutes en voiture. Il y a deux commerces à quelques minutes.
Elle est proposée à l'achat pour 349 000 €.
N'hésitez pas à prendre contact avec notre agence (Cedric YAHIAOUI : 06-66-57-00-63) pour toute question sur la maison, sur les démarches à suivre ou sur les modalités de vente. Maisons France Confort Magny-le-Hongre est là pour vous accompagner à toutes les étapes de l'achat.
Annonce proposée par un Agent Commercial Partenaire.
Mentions légales
Terrain proposé par un partenaire foncier selon disponibilités et autorisation de publicité au prix de 189 000 €. Hors droit d'enregistrement et frais de notaire. Terrain + Maison proposés au prix de 349 000 € (Hors branchements et raccordements, papiers peints, peintures, revêtement de sol dans les chambres. Tarif modifiable sans préavis). Etiquette énergie : A. Différents modèles disponibles pour ce terrain. Assurances et garanties du constructeur (RC professionnelle, décennale, dommage ouvrage, garantie de remboursement de l'acompte, livraison à prix et délai convenu) : https://www.maisons-france-confort.fr/mentions-legales/. HEXAOM Services est enregistré auprès de l'ORIAS en tant que Courtier en financement, Niveau 1, sous le numéro 14001345.Agence Maisons France Confort de Magny-le-Hongre (77700)
- Téléphone :
- 01 84 80 92 96
- Adressse :
- 11 rue de Courtalin
77700 Magny-le-Hongre, France
