Maison neuve à
Coutevroult
(77580) Référence :
CY2431653_1
Prix du projet : Maison avec Terrain
prix 349 000 €
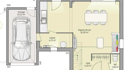
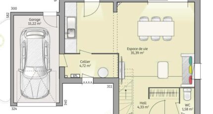
- 5 pièces
- 3 chambres
- Surface maison 90 m2
VENTE : maison T5 (90 m²) à Coutevroult
MAISON 5 PIÈCES NEUVE - PROCHE DE MONTREUIL
À côté de la gare d'Esbly (Paris à 30 min avec le Transilien P), à vendre à Coutevroult (77580), nous vous proposons cette maison de 5 pièces de 90 m². Elle propose trois chambres, une cuisine et une salle de bains.
Le terrain de la maison est de 322 m².
Cette maison comporte 2 niveaux. Elle est neuve.
Il y a l'École Primaire Pierre Falke à moins de 10 minutes à pied. Niveau transports, on trouve la ligne de RER A (Chessy-Marne-La-Vallée) ainsi que huit gares à moins de 10 minutes en voiture. Il y a deux commerces à proximité du bien.
Elle est à vendre pour la somme de 349 000 €.
Contactez Cedric YAHIAOUI (06-66-57-00-63) pour obtenir de plus amples renseignements sur cette maison, sur les démarches à suivre ou sur les modalités de vente. Donnez vie à vos projets immobiliers avec Maisons France Confort Magny-le-Hongre.
Annonce proposée par un Agent Commercial Partenaire.
Mentions légales
Terrain proposé par un partenaire foncier selon disponibilités et autorisation de publicité au prix de 189 000 €. Hors droit d'enregistrement et frais de notaire. Terrain + Maison proposés au prix de 349 000 € (Hors branchements et raccordements, papiers peints, peintures, revêtement de sol dans les chambres. Tarif modifiable sans préavis). Etiquette énergie : A. Différents modèles disponibles pour ce terrain. Assurances et garanties du constructeur (RC professionnelle, décennale, dommage ouvrage, garantie de remboursement de l'acompte, livraison à prix et délai convenu) : https://www.maisons-france-confort.fr/mentions-legales/. HEXAOM Services est enregistré auprès de l'ORIAS en tant que Courtier en financement, Niveau 1, sous le numéro 14001345.Agence Maisons France Confort de Magny-le-Hongre (77700)
- Téléphone :
- 01 84 80 92 96
- Adressse :
- 11 rue de Courtalin
77700 Magny-le-Hongre, France
