Maison neuve à
Coutevroult (77580) Référence : CY2431700_1

Prix du projet : Maison avec Terrain

prix 425 000 €

  • 5 pièces
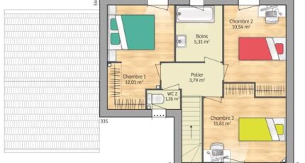
  • 3 chambres
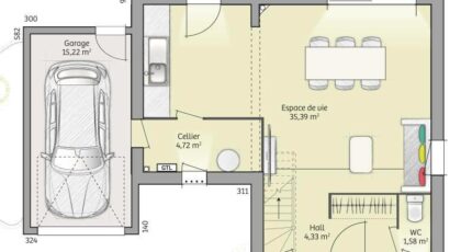
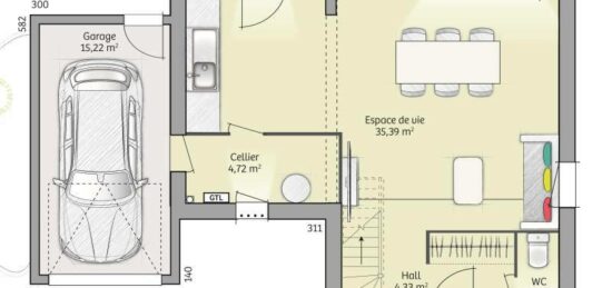
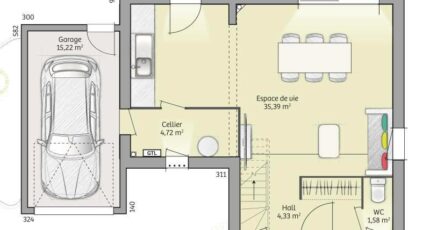
  • Surface maison 90 m2

Coutevroult : maison F5 (90 m²) à vendre
PROCHE DE MONTREUIL - MAISON 5 PIÈCES NEUVE
En vente : à côté du Transilien P (gare d'Esbly, 30 min de Paris), à Coutevroult (77580), nous sommes ravis de vous proposer cette maison de 5 pièces de 90 m². Son intérieur offre trois chambres, une cuisine et une salle de bains.
Le terrain de la propriété s'étend sur 1 014 m².
C'est une maison de 2 niveaux. Elle est neuve.
Il y a l'École Primaire Pierre Falke à moins de 10 minutes à pied. Niveau transports en commun, on trouve la ligne de RER A (Chessy-Marne-La-Vallée) ainsi que huit gares à moins de 10 minutes en voiture. Il y a deux commerces à proximité de la maison.
Elle est proposée à l'achat pour 425 000 €.
N'hésitez pas à prendre contact avec Cedric YAHIAOUI (06-66-57-00-63) pour plus d'informations sur le bien.

Annonce proposée par un Agent Commercial Partenaire.

Mentions légales

Terrain proposé par un partenaire foncier selon disponibilités et autorisation de publicité au prix de 265 000 €. Hors droit d'enregistrement et frais de notaire. Terrain + Maison proposés au prix de 425 000 € (Hors branchements et raccordements, papiers peints, peintures, revêtement de sol dans les chambres. Tarif modifiable sans préavis). Etiquette énergie : A. Différents modèles disponibles pour ce terrain. Assurances et garanties du constructeur (RC professionnelle, décennale, dommage ouvrage, garantie de remboursement de l'acompte, livraison à prix et délai convenu) : https://www.maisons-france-confort.fr/mentions-legales/. HEXAOM Services est enregistré auprès de l'ORIAS en tant que Courtier en financement, Niveau 1, sous le numéro 14001345.

Contactez l'agence de Magny-le-Hongre

01 84 80 92 96

    * Champs obligatoires

    Vos informations sont traitées par HEXAOM et transmises à un conseiller commercial qui vous contactera afin de répondre à votre demande. Les plans et images présentés sur notre site sont la propriété d’HEXAOM et ne peuvent pas être reproduits sans son accord. Pour retrouver notre politique de protection des données personnelles et exercer vos droits conformément à la « loi informatique et liberté » cliquez-ici.