Maison neuve à
Cuisy
(77165) Référence :
CY2431890_1
Prix du projet : Maison avec Terrain
prix 311 000 €
- 5 pièces
- 3 chambres
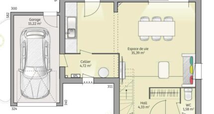
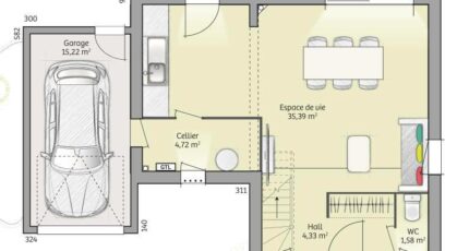
- Surface maison 90 m2
VENTE : maison T5 (90 m²) à Cuisy
MAISON 5 PIÈCES NEUVE - PROCHE DE MONTREUIL
En vente : à deux pas du Transilien K (gare de Dammartin-Juilly-Saint-Mard, 30 min de Paris), nous vous proposons à Cuisy (77165), cette maison de 5 pièces de 90 m² et de 458 m² de terrain.
Cette maison compte 2 niveaux. Elle comporte trois chambres, une cuisine et une salle de bains. Cette maison est neuve.
Il y a une école élémentaire dans le quartier. Niveau transports, on trouve quatre gares à moins de 10 minutes en voiture. On trouve un tennis à proximité.
Son prix de vente est de 311 000 €.
Prenez contact avec Cedric YAHIAOUI (tél : 06-66-57-00-63) pour toute information sur la maison, sur les démarches à suivre ou sur les modalités de vente.
Annonce proposée par un Agent Commercial Partenaire.
Mentions légales
Terrain proposé par un partenaire foncier selon disponibilités et autorisation de publicité au prix de 151 000 €. Hors droit d'enregistrement et frais de notaire. Terrain + Maison proposés au prix de 311 000 € (Hors branchements et raccordements, papiers peints, peintures, revêtement de sol dans les chambres. Tarif modifiable sans préavis). Etiquette énergie : A. Différents modèles disponibles pour ce terrain. Assurances et garanties du constructeur (RC professionnelle, décennale, dommage ouvrage, garantie de remboursement de l'acompte, livraison à prix et délai convenu) : https://www.maisons-france-confort.fr/mentions-legales/. HEXAOM Services est enregistré auprès de l'ORIAS en tant que Courtier en financement, Niveau 1, sous le numéro 14001345.Agence Maisons France Confort de Magny-le-Hongre (77700)
- Téléphone :
- 01 84 80 92 96
- Adressse :
- 11 rue de Courtalin
77700 Magny-le-Hongre, France
