Maison neuve à
Cuisy
(77165) Référence :
CY2469221_2
Prix du projet : Maison avec Terrain
prix 367 897 €
- 5 pièces
- 4 chambres
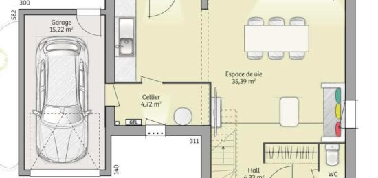
- Surface maison 120 m2
VENTE : maison F5 (120 m²) à Cuisy
IDÉALEMENT SITUÉE - MAISON 5 PIÈCES NEUVE
À deux pas de la gare de Dammartin-Juilly-Saint-Mard (Paris à 30 min par le Transilien K), à vendre idéalement située dans Cuisy (77165), nous sommes ravis de vous proposer cette maison de 5 pièces de plain-pied de 120 m². Conçue de plain-pied, elle compte quatre chambres, une cuisine et deux salles de bains.
Le terrain de la propriété est de 524 m².
La maison est neuve.
Cette propriété est située dans un secteur convoité. On y trouve une école élémentaire. Niveau transports en commun, on trouve quatre gares à moins de 10 minutes en voiture. Il y a un tennis à proximité.
Elle est proposée à l'achat pour 367 897 €.
Prenez contact avec notre agence (Cedric YAHIAOUI : 06-66-57-00-63) pour tout renseignement sur la maison, sur les modalités de vente ou sur les démarches à suivre. Concrétisez vos projets immobiliers avec Maisons France Confort Mareuil-lès-Meaux.
Annonce proposée par un Agent Commercial Partenaire.
Mentions légales
Terrain proposé par un partenaire foncier selon disponibilités et autorisation de publicité au prix de 139 000 €. Hors droit d'enregistrement et frais de notaire. Terrain + Maison proposés au prix de 367 897 € (Hors branchements et raccordements, papiers peints, peintures, revêtement de sol dans les chambres. Tarif modifiable sans préavis). Etiquette énergie : A. Différents modèles disponibles pour ce terrain. Assurances et garanties du constructeur (RC professionnelle, décennale, dommage ouvrage, garantie de remboursement de l'acompte, livraison à prix et délai convenu) : https://www.maisons-france-confort.fr/mentions-legales/. HEXAOM Services est enregistré auprès de l'ORIAS en tant que Courtier en financement, Niveau 1, sous le numéro 14001345.Agence Maisons France Confort de Mareuil-lès-Meaux (77100)
- Téléphone :
- 01 60 09 28 30
- Adressse :
- Domexpo Est Village La Hayette
77100 Mareuil-lès-Meaux, France
