Maison neuve à
Cuisy
(77165) Référence :
CY2431916_1
Prix du projet : Maison avec Terrain
prix 313 000 €
- 5 pièces
- 3 chambres
- Surface maison 90 m2
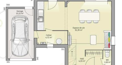
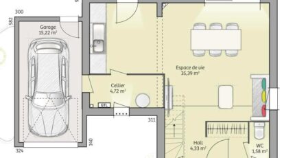
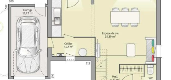
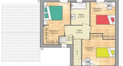
Cuisy : maison de 5 pièces (90 m²) à vendre
MAISON 5 PIÈCES NEUVE - PROCHE DE MONTREUIL
À vendre : à côté du Transilien K (gare de Dammartin-Juilly-Saint-Mard, 30 min de Paris), à Cuisy (77165), Maisons France Confort Magny-le-Hongre vous propose cette maison de 5 pièces de 90 m². Elle inclut trois chambres, une cuisine et une salle de bains.
Le terrain du bien est de 503 m².
Cette maison compte 2 niveaux. Elle est neuve.
Une école élémentaire est implantée dans le quartier. Niveau transports, on trouve quatre gares à moins de 10 minutes en voiture. Il y a un tennis dans les environs.
Son prix de vente est de 313 000 €.
N'hésitez pas à prendre contact avec Cedric YAHIAOUI (tél : 06-66-57-00-63) pour obtenir de plus amples informations sur cette maison ou sur les modalités de vente. Maisons France Confort Magny-le-Hongre vous accompagne à toutes les étapes de l'achat et dans toutes vos démarches.
Annonce proposée par un Agent Commercial Partenaire.
Mentions légales
Terrain proposé par un partenaire foncier selon disponibilités et autorisation de publicité au prix de 153 000 €. Hors droit d'enregistrement et frais de notaire. Terrain + Maison proposés au prix de 313 000 € (Hors branchements et raccordements, papiers peints, peintures, revêtement de sol dans les chambres. Tarif modifiable sans préavis). Etiquette énergie : A. Différents modèles disponibles pour ce terrain. Assurances et garanties du constructeur (RC professionnelle, décennale, dommage ouvrage, garantie de remboursement de l'acompte, livraison à prix et délai convenu) : https://www.maisons-france-confort.fr/mentions-legales/. HEXAOM Services est enregistré auprès de l'ORIAS en tant que Courtier en financement, Niveau 1, sous le numéro 14001345.Agence Maisons France Confort de Magny-le-Hongre (77700)
- Téléphone :
- 01 84 80 92 96
- Adressse :
- 11 rue de Courtalin
77700 Magny-le-Hongre, France
