Maison neuve à
Cuisy
(77165) Référence :
DC2432594_1
Prix du projet : Maison avec Terrain
prix 312 000 €
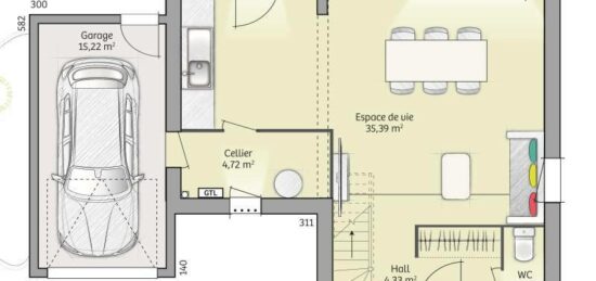
- 5 pièces
- 3 chambres
- Surface maison 89 m2
Secteur Cuisy.
🌟 Votre maison idéale, imaginée pour vous par Maisons France Confort ! 🌟
Vous rêvez d'une maison sur mesure, alliant confort moderne, élégance intemporelle et qualité de vie ? Avec Maisons France Confort, transformez ce rêve en réalité !
✨ Pourquoi choisir Maisons France Confort?
Un savoir-faire reconnu : Plus de 100 ans d'expertise dans la construction de maisons individuelles, pour un résultat durable, esthétique et personnalisé.
Des maisons 100% adaptées à vos besoins : Plans modulables, matériaux haut de gamme et finitions soignées pour une maison uniquement vôtre.
Des performances énergétiques optimisées : Des maisons RT 2020 pour allier économies et respect de l'environnement.
📞 Contactez-nous dès maintenant pour concrétiser votre projet et bénéficier d'un premier rendez-vous personnalisé.
Annonce proposée par un Agent Commercial Partenaire.
Mentions légales
Terrain proposé par un partenaire foncier selon disponibilités et autorisation de publicité au prix de 142 000 €. Hors droit d'enregistrement et frais de notaire. Terrain + Maison proposés au prix de 312 000 € (Hors branchements et raccordements, papiers peints, peintures, revêtement de sol dans les chambres. Tarif modifiable sans préavis). Etiquette énergie : A. Différents modèles disponibles pour ce terrain. Assurances et garanties du constructeur (RC professionnelle, décennale, dommage ouvrage, garantie de remboursement de l'acompte, livraison à prix et délai convenu) : https://www.maisons-france-confort.fr/mentions-legales/. HEXAOM Services est enregistré auprès de l'ORIAS en tant que Courtier en financement, Niveau 1, sous le numéro 14001345.Agence Maisons France Confort de Melun (77000)
- Téléphone :
- 01 64 14 43 20
- Adressse :
- 3 route de Nangis
77000 Melun, France