Maison neuve à
Cuisy
(77165) Référence :
CY2431788_1
Prix du projet : Maison avec Terrain
prix 311 000 €
- 5 pièces
- 3 chambres
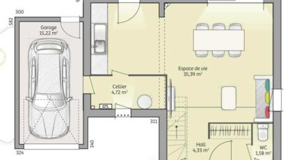
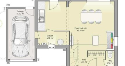
- Surface maison 90 m2
Cuisy : maison F5 (90 m²) en vente
MAISON 5 PIÈCES NEUVE - PROCHE DE MONTREUIL
À vendre : proche de la gare de Dammartin-Juilly-Saint-Mard (Paris à 30 min par le Transilien K), Maisons France Confort Magny-le-Hongre vous propose cette maison de 5 pièces de 90 m² et de 408 m² de terrain à Cuisy (77165).
C'est une maison de 2 niveaux. Son intérieur comporte trois chambres, une cuisine et une salle de bains. Cette maison est neuve.
Une école élémentaire est implantée dans le quartier. Côté transports en commun, il y a quatre gares à moins de 10 minutes en voiture. On trouve un tennis à quelques minutes.
Elle est proposée à l'achat pour 311 000 €.
N'hésitez pas à prendre contact avec notre agence (YAHIAOUI Cedric : 06-66-57-00-63) pour toute information sur la maison, sur les modalités de vente ou sur les démarches à suivre. Faites de vos projets immobiliers une réalité avec Maisons France Confort Magny-le-Hongre.
Annonce proposée par un Agent Commercial Partenaire.
Mentions légales
Terrain proposé par un partenaire foncier selon disponibilités et autorisation de publicité au prix de 151 000 €. Hors droit d'enregistrement et frais de notaire. Terrain + Maison proposés au prix de 311 000 € (Hors branchements et raccordements, papiers peints, peintures, revêtement de sol dans les chambres. Tarif modifiable sans préavis). Etiquette énergie : A. Différents modèles disponibles pour ce terrain. Assurances et garanties du constructeur (RC professionnelle, décennale, dommage ouvrage, garantie de remboursement de l'acompte, livraison à prix et délai convenu) : https://www.maisons-france-confort.fr/mentions-legales/. HEXAOM Services est enregistré auprès de l'ORIAS en tant que Courtier en financement, Niveau 1, sous le numéro 14001345.Agence Maisons France Confort de Magny-le-Hongre (77700)
- Téléphone :
- 01 84 80 92 96
- Adressse :
- 11 rue de Courtalin
77700 Magny-le-Hongre, France
