Maison neuve à
Dargnies (80570) Référence : DD_eu44_10-0_1

Prix du projet : Maison avec Terrain

prix 151 200 €

  • 3 pièces
  • 2 chambres
  • Surface maison 65 m2

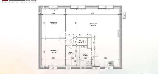
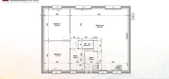
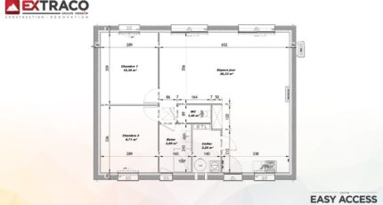
Maison de 3 pièces (65 m²) en vente à Dargnies
MAISON 3 PIÈCES NEUVE
À vendre : à 12 km de la Manche, Les Maisons Extraco Eu vous présente cette maison de 3 pièces de plain-pied de 65 m² et de 1 200 m² de terrain à Dargnies (80570). Conçue de plain-pied, elle comporte deux chambres, une cuisine et une salle de bains.
La maison est neuve.
Il y a l'École Primaire Paul Lenne à moins de 10 minutes à pied. Côté transports en commun, on trouve deux gares (Longroy-Gamaches et Eu) à moins de 10 minutes en voiture. Il y a un accès à l'autoroute A28 à 14 km. Il y a une bibliothèque, un supermarché et un bureau de poste dans les environs.
Son prix de vente est de 151 200 €.
N'hésitez pas à prendre contact avec Delphine DERULLES (tél : 06-67-13-79-40) pour toute information sur cette propriété ou sur les modalités de vente.

Mentions légales

Terrain proposé par un partenaire foncier selon disponibilités et autorisation de publicité au prix de 38 000 €. Hors droit d'enregistrement et frais de notaire. Maison proposée, avec un contrat de construction de maison individuelle, dans le cadre de la loi du 19/12/1990, au prix de 113 200 € (Hors branchements et raccordements, papiers peints, peintures, revêtement de sol dans les chambres, qui sont chiffrés dans les travaux qui restent à charge du client. Tarif modifiable sans préavis). Étiquette énergie : A. Différents modèles disponibles pour ce terrain. Assurances et garanties du constructeur comprises (RC professionnelle, décennale, dommage ouvrage).