Maison neuve à
Delincourt
(60240) Référence :
CY2428469_17
Prix du projet : Maison avec Terrain
prix 245 000 €
- 5 pièces
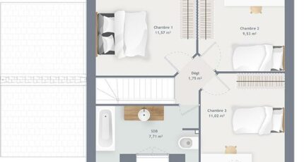
- 3 chambres
- Surface maison 80 m2
Maison F5 (80 m²) à vendre à Delincourt
PROCHE GARE - MAISON 5 PIÈCES NEUVE
À vendre : à deux pas du Transilien J (gare de Chaumont-en-Vexin, 1 h de Paris), nous sommes heureux de vous proposer cette maison de 5 pièces de 80 m² proche de la gare de Delincourt (60240). Elle compte trois chambres, une cuisine et une salle de bains.
Le terrain de la propriété est de 622 m².
Il s'agit d'une maison de 2 niveaux. Elle est neuve.
Il y a une école élémentaire dans le quartier. Niveau transports, on trouve cinq gares à moins de 10 minutes en voiture. Il y a un tennis à quelques minutes de la maison.
Elle est proposée à l'achat pour 245 000 €.
Prenez contact avec Cedric YAHIAOUI (tél : 06-66-57-00-63) pour tout renseignement sur la maison ou sur les modalités de vente.
Annonce proposée par un Agent Commercial Partenaire.
Mentions légales
Terrain proposé par un partenaire foncier selon disponibilités et autorisation de publicité au prix de 73 900 €. Hors droit d'enregistrement et frais de notaire. Terrain + Maison proposés au prix de 245 000 € (Hors branchements et raccordements, papiers peints, peintures, revêtement de sol dans les chambres. Tarif modifiable sans préavis). Etiquette énergie : A. Différents modèles disponibles pour ce terrain. Assurances et garanties du constructeur (RC professionnelle, décennale, dommage ouvrage, garantie de remboursement de l'acompte, livraison à prix et délai convenu) : https://www.maisons-france-confort.fr/mentions-legales/. HEXAOM Services est enregistré auprès de l'ORIAS en tant que Courtier en financement, Niveau 1, sous le numéro 14001345.Agence Maisons France Confort de Magny-le-Hongre (77700)
- Téléphone :
- 01 84 80 92 96
- Adressse :
- 11 rue de Courtalin
77700 Magny-le-Hongre, France
