Maison neuve à
Delincourt
(60240) Référence :
FBDELINCOURT62_3
Prix du projet : Maison avec Terrain
prix 264 000 €
- 5 pièces
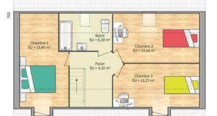
- 3 chambres
- Surface maison 80 m2
VENTE d'une maison T5 (80 m²) à Delincourt
IDÉALEMENT SITUÉE - MAISON 5 PIÈCES NEUVE
En vente : à proximité du Transilien J (gare de Chaumont-en-Vexin, 1 h de Paris), ayez le coup de coeur pour cette maison de 5 pièces de 80 m² et de 670 m² de terrain idéalement située dans Delincourt (60240).
Il s'agit d'une maison de 2 niveaux. Elle propose trois chambres, une cuisine et une salle de bains. La maison est neuve.
La maison se trouve dans un quartier attractif. Une école élémentaire y est implantée. Côté transports, il y a cinq gares à moins de 10 minutes en voiture. On trouve un tennis dans les environs.
Elle est proposée à l'achat pour 264 000 €.
N'hésitez pas à prendre contact avec Fabrice BONELLO (06-09-50-50-09) pour obtenir de plus amples renseignements sur la maison. Donnez vie à vos projets immobiliers avec Maisons France Confort Beauvais.
Mentions légales
Terrain proposé par un partenaire foncier selon disponibilités et autorisation de publicité au prix de 75 900 €. Hors droit d'enregistrement et frais de notaire. Terrain + Maison proposés au prix de 264 000 € (Hors branchements et raccordements, papiers peints, peintures, revêtement de sol dans les chambres. Tarif modifiable sans préavis). Etiquette énergie : A. Différents modèles disponibles pour ce terrain. Assurances et garanties du constructeur (RC professionnelle, décennale, dommage ouvrage, garantie de remboursement de l'acompte, livraison à prix et délai convenu) : https://www.maisons-france-confort.fr/mentions-legales/. HEXAOM Services est enregistré auprès de l'ORIAS en tant que Courtier en financement, Niveau 1, sous le numéro 14001345.Agence Maisons France Confort de Beauvais (60000)
- Téléphone :
- 03 44 04 40 04
- Adressse :
- 42 rue Pierre Jacoby
60000 Beauvais, France
