Maison neuve à
Delincourt (60240) Référence : CY2467586_1

Prix du projet : Maison avec Terrain

prix 266 500 €

  • 5 pièces
  • 3 chambres
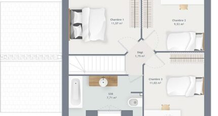
  • Surface maison 80 m2

VENTE d'une maison de 5 pièces (80 m²) à Delincourt
IDÉALEMENT SITUÉE - MAISON 5 PIÈCES NEUVE
À vendre : à quelques minutes de la gare de Chaumont-en-Vexin (Paris à 1 h par le Transilien J), nous sommes heureux de vous proposer cette maison de 5 pièces de 80 m² et de 660 m² de terrain idéalement située dans Delincourt (60240).
Il s'agit d'une maison de 2 niveaux. Son intérieur offre trois chambres, une cuisine et une salle de bains. La maison est neuve.
Cette maison se trouve dans un secteur recherché. On y trouve une école élémentaire. Niveau transports en commun, il y a cinq gares à moins de 10 minutes en voiture. On trouve un tennis à proximité du logement.
Elle est proposée à l'achat pour 266 500 €.
N'hésitez pas à prendre contact avec notre agence (YAHIAOUI Cedric : 06-66-57-00-63) pour toute question sur la maison. Maisons France Confort Mareuil-lès-Meaux est là pour vous accompagner dans tous vos projets immobiliers.

Annonce proposée par un Agent Commercial Partenaire.

Mentions légales

Terrain proposé par un partenaire foncier selon disponibilités et autorisation de publicité au prix de 76 900 €. Hors droit d'enregistrement et frais de notaire. Terrain + Maison proposés au prix de 266 500 € (Hors branchements et raccordements, papiers peints, peintures, revêtement de sol dans les chambres. Tarif modifiable sans préavis). Etiquette énergie : A. Différents modèles disponibles pour ce terrain. Assurances et garanties du constructeur (RC professionnelle, décennale, dommage ouvrage, garantie de remboursement de l'acompte, livraison à prix et délai convenu) : https://www.maisons-france-confort.fr/mentions-legales/. HEXAOM Services est enregistré auprès de l'ORIAS en tant que Courtier en financement, Niveau 1, sous le numéro 14001345.

Contactez l'agence de Mareuil-lès-Meaux

01 60 09 28 30

    * Champs obligatoires

    Vos informations sont traitées par HEXAOM et transmises à un conseiller commercial qui vous contactera afin de répondre à votre demande. Les plans et images présentés sur notre site sont la propriété d’HEXAOM et ne peuvent pas être reproduits sans son accord. Pour retrouver notre politique de protection des données personnelles et exercer vos droits conformément à la « loi informatique et liberté » cliquez-ici.