Maison neuve à
Donnemarie-Dontilly (77520) Référence : CY2435718_1

Prix du projet : Maison avec Terrain

prix 209 020 €

  • 5 pièces
  • 3 chambres
  • Surface maison 90 m2

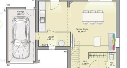
VENTE d'une maison de 5 pièces (90 m²) à Donnemarie-Dontilly
MAISON 5 PIÈCES NEUVE
En vente à Donnemarie-Dontilly (77520), notre agence Maisons France Confort Magny-le-Hongre est heureuse de vous présenter cette maison de 5 pièces de 90 m². Elle dispose de trois chambres, d'une cuisine et d'une salle de bains.
Le terrain de la maison s'étend sur 495 m².
Cette maison compte 2 niveaux. Elle est neuve.
On trouve l'École Maternelle la Butte Saint Pierre et l'École Élémentaire l'Auxence à moins de 10 minutes à pied. Il y a un tennis, une bibliothèque, trois commerces, deux boulangeries, une épicerie, deux boucheries-charcuteries et un bureau de poste à proximité de la maison.
Elle est proposée à l'achat pour 209 020 €.
N'hésitez pas à prendre contact avec Cedric YAHIAOUI (tél : 06-66-57-00-63) pour toute information sur la maison, sur les modalités de vente ou sur les démarches à suivre. Maisons France Confort Magny-le-Hongre vous accompagne à toutes les étapes de votre projet et dans tous vos projets immobiliers.

Annonce proposée par un Agent Commercial Partenaire.

Mentions légales

Terrain proposé par un partenaire foncier selon disponibilités et autorisation de publicité au prix de 49 020 €. Hors droit d'enregistrement et frais de notaire. Terrain + Maison proposés au prix de 209 020 € (Hors branchements et raccordements, papiers peints, peintures, revêtement de sol dans les chambres. Tarif modifiable sans préavis). Etiquette énergie : A. Différents modèles disponibles pour ce terrain. Assurances et garanties du constructeur (RC professionnelle, décennale, dommage ouvrage, garantie de remboursement de l'acompte, livraison à prix et délai convenu) : https://www.maisons-france-confort.fr/mentions-legales/. HEXAOM Services est enregistré auprès de l'ORIAS en tant que Courtier en financement, Niveau 1, sous le numéro 14001345.

Contactez l'agence de Magny-le-Hongre

01 84 80 92 96

    * Champs obligatoires

    Vos informations sont traitées par HEXAOM et transmises à un conseiller commercial qui vous contactera afin de répondre à votre demande. Les plans et images présentés sur notre site sont la propriété d’HEXAOM et ne peuvent pas être reproduits sans son accord. Pour retrouver notre politique de protection des données personnelles et exercer vos droits conformément à la « loi informatique et liberté » cliquez-ici.