Maison neuve à
Douvrin
(62138) Référence :
TH2441938_8
Prix du projet : Maison avec Terrain
prix 339 076 €
- 6 pièces
- 5 chambres
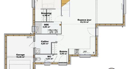
- Surface maison 114 m2
MAISON OSSATURE BOIS
VENTE : maison F6 (114 m²) à Douvrin
EMPLACEMENT PRIVILÉGIÉ - MAISON 6 PIÈCES NEUVE
Nous vous proposons cette maison de 6 pièces de 114 m² et de 376 m² de terrain bénéficiant d'un emplacement d'exception dans Douvrin (62138). Son intérieur est composé de cinq chambres, d'une cuisine et de deux salles de bains.
C'est une maison de 2 niveaux. Elle est neuve.
Elle est située dans un secteur attractif. On trouve cinq établissements scolaires à moins de 10 minutes à pied, tout comme une crèche. Niveau transports, il y a 3 gares à moins de 10 minutes en voiture. On trouve un tennis, une bibliothèque, des commerces, une boulangerie, une boucherie-charcuterie et un bureau de poste dans les environs.
Elle est proposée à l'achat pour 339 076 €.
N'hésitez pas à prendre contact avec Thomas HAUSTRATE (tél : 06-49-81-47-04) pour toute information sur cette maison. Maisons France Confort Hénin-Beaumont vous accompagne dans tous vos projets immobiliers et dans toutes vos démarches.
Mentions légales
Terrain proposé par un partenaire foncier selon disponibilités et autorisation de publicité au prix de 60 000 €. Hors droit d'enregistrement et frais de notaire. Terrain + Maison proposés au prix de 339 076 € (Hors branchements et raccordements, papiers peints, peintures, revêtement de sol dans les chambres. Tarif modifiable sans préavis). Etiquette énergie : A. Différents modèles disponibles pour ce terrain. Assurances et garanties du constructeur (RC professionnelle, décennale, dommage ouvrage, garantie de remboursement de l'acompte, livraison à prix et délai convenu) : https://www.maisons-france-confort.fr/mentions-legales/. HEXAOM Services est enregistré auprès de l'ORIAS en tant que Courtier en financement, Niveau 1, sous le numéro 14001345.Agence Maisons France Confort de Hénin-Beaumont (62110)
- Téléphone :
- 03 21 14 37 05
- Adressse :
- Chemin de Noyelles
62110 Hénin-Beaumont, France
