Maison neuve à
Douvrin
(62138) Référence :
GL2448611_4
Prix du projet : Maison avec Terrain
prix 310 839 €
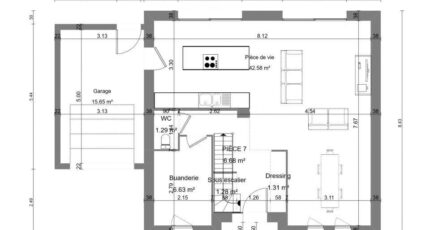
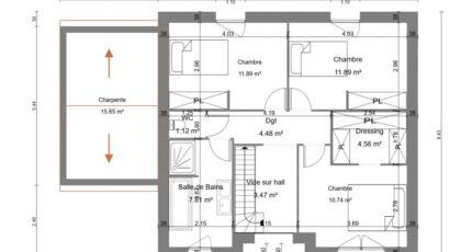
- 6 pièces
- 3 chambres
- Surface maison 110 m2
VENTE : maison de 6 pièces (110 m²) à Douvrin
IDÉALEMENT SITUÉE - MAISON 6 PIÈCES NEUVE
En vente : située à moins de 22 km de la Belgique et à quelques kilomètres de Lille, idéalement située dans Douvrin (62138), nous vous présentons cette maison de 6 pièces de 110 m².
C'est une maison de 2 niveaux. Son intérieur propose trois chambres, une cuisine et une salle de bains. La maison est neuve.
Le terrain de la propriété s'étend sur 384 m².
Elle se trouve dans un quartier attractif. Il y a cinq établissements scolaires à moins de 10 minutes à pied, tout comme une crèche. Côté transports en commun, on trouve 13 gares à moins de 10 minutes en voiture. Il y a un tennis, une bibliothèque, une boucherie-charcuterie, un bureau de poste et une épicerie dans les environs.
Son prix de vente est de 310 839 €.
Contactez Grégory LEROY (06-10-76-67-66) pour toute information sur la maison.
Les terrains sont vendus uniquement dans le but de faire construire avec Maisons France Confort.
Les plans de maisons sont tous réalisés sur mesure avec des possibilités infinies en fonction de vos envies.
Mentions légales
Terrain proposé par un partenaire foncier selon disponibilités et autorisation de publicité au prix de 83 000 €. Hors droit d'enregistrement et frais de notaire. Terrain + Maison proposés au prix de 310 839 € (Hors branchements et raccordements, papiers peints, peintures, revêtement de sol dans les chambres. Tarif modifiable sans préavis). Etiquette énergie : A. Différents modèles disponibles pour ce terrain. Assurances et garanties du constructeur (RC professionnelle, décennale, dommage ouvrage, garantie de remboursement de l'acompte, livraison à prix et délai convenu) : https://www.maisons-france-confort.fr/mentions-legales/. HEXAOM Services est enregistré auprès de l'ORIAS en tant que Courtier en financement, Niveau 1, sous le numéro 14001345.Agence Maisons France Confort de Hénin-Beaumont (62110)
- Téléphone :
- 03 21 14 37 05
- Adressse :
- Chemin de Noyelles
62110 Hénin-Beaumont, France
