Maison neuve à
Écharcon
(91540) Référence :
KM2424488_3
Prix du projet : Maison avec Terrain
prix 476 322 €
- 6 pièces
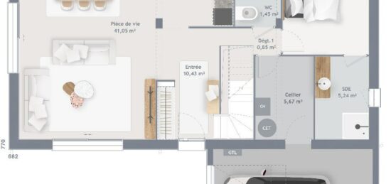
- 3 chambres
- Surface maison 100 m2
Écharcon : maison F6 (100 m²) en vente
MAISON 6 PIÈCES NEUVE - PROCHE DE CRÉTEIL
À côté de la station Évry-Courcouronnes du RER D (35 min de Paris), votre agence Maisons Balency Ormoy est ravie de vous présenter en vente à Écharcon (91540), cette maison de 6 pièces de plain-pied de 100 m² et de 1 000 m² de terrain. Son intérieur comporte trois chambres, une cuisine et une salle de bains.
Cette maison est neuve.
L'École Primaire Jean Satonnet est implantée à moins de 10 minutes à pied. Niveau transports, il y a les lignes D et C du RER ainsi que 18 gares à moins de 10 minutes en voiture. On trouve une bibliothèque et un commerce à quelques minutes du bien.
Son prix de vente est de 476 322 €.
N'hésitez pas à prendre contact avec Karim MOUSSA (tél : 06-49-43-56-27) pour toute question sur la maison, sur les modalités de vente ou sur les démarches à suivre. Maisons Balency Ormoy est là pour vous accompagner à toutes les étapes de votre projet.
Annonce proposée par un Agent Commercial Partenaire.
Mentions légales
Terrain proposé par un partenaire foncier selon disponibilités et autorisation de publicité au prix de 210 000 €. Hors droit d'enregistrement et frais de notaire. Terrain + Maison proposés au prix de 476 322 € (Hors branchements et raccordements, papiers peints, peintures, revêtement de sol dans les chambres. Tarif modifiable sans préavis). Etiquette énergie : A. Différents modèles disponibles pour ce terrain. Assurances et garanties du constructeur (RC professionnelle, décennale, dommage ouvrage, garantie de remboursement de l'acompte, livraison à prix et délai convenu) : https://www.maisons-balency.fr/informations-legales/. HEXAOM Services est enregistré auprès de l'ORIAS en tant que Courtier en financement, Niveau 1, sous le numéro 14001345.Agence Maisons Balency de Ormoy (91540)
- Téléphone :
- 09 67 70 15 81
- Adressse :
- 23 chemin de Tournenfils - 1er étage
91540 Ormoy, France
