Maison neuve à
Életot (76540) Référence : LC2448416_1

Prix du projet : Maison avec Terrain

prix 188 311 €

  • 4 pièces
  • 3 chambres
  • Surface maison 90 m2

MAISON NEUVE DE 90 M² AVEC VUE SUR ESPACE VERT, IDÉALEMENT SITUÉE À ÉLETOT

PRÉSENTATION DU BIEN

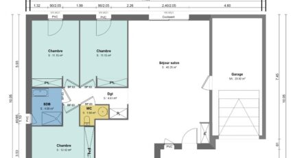
Située à Életot, cette maison neuve à construire offre une surface habitable de 90 m² sur un terrain de 800 m². Idéalement située, elle bénéficie d'une vue agréable sur un espace vert.

Cette maison de plain-pied propose trois chambres, une cuisine et une salle de bains avec baignoire, pour un cadre de vie confortable.

La maison est de plain-pied, ce qui facilite les déplacements internes et optimise la vie quotidienne.

Le terrain de 800 m² constitue un espace extérieur important, parfait pour vos projets d'aménagements extérieurs.

ENVIRONNEMENT

Életot est une commune située à proximité de la Manche, à environ 2,6 kilomètres, offrant un cadre naturel intéressant. La gare de Fécamp est accessible à 6 kilomètres, permettant des déplacements commodes. Un restaurant se trouve à quelques minutes à pied, tout comme une bibliothèque à proximité. La commune dispose également d'établissements scolaires de niveau primaire. Des commerces sont présents autour du bien.

NOUS CONTACTER

Cette maison est proposée à la vente au prix de 188 311 euros.

Pour plus d'informations, n'hésitez pas à contacter Lindsay COLLÁY de l'agence Maisons France Confort Sainte-Marie-des-Champs au O6-67-66-O8-77. Construisez votre maison avec un interlocuteur de confiance.

Mentions légales

Terrain proposé par un partenaire foncier selon disponibilités et autorisation de publicité au prix de 45 000 €. Hors droit d'enregistrement et frais de notaire. Terrain + Maison proposés au prix de 188 311 € (Hors branchements et raccordements, papiers peints, peintures, revêtement de sol dans les chambres. Tarif modifiable sans préavis). Etiquette énergie : A. Différents modèles disponibles pour ce terrain. Assurances et garanties du constructeur (RC professionnelle, décennale, dommage ouvrage, garantie de remboursement de l'acompte, livraison à prix et délai convenu) : https://www.maisons-france-confort.fr/mentions-legales/. HEXAOM Services est enregistré auprès de l'ORIAS en tant que Courtier en financement, Niveau 1, sous le numéro 14001345.

Contactez l'agence de Sainte-Marie-des-Champs

02 32 98 94 90

    * Champs obligatoires

    Vos informations sont traitées par HEXAOM et transmises à un conseiller commercial qui vous contactera afin de répondre à votre demande. Les plans et images présentés sur notre site sont la propriété d’HEXAOM et ne peuvent pas être reproduits sans son accord. Pour retrouver notre politique de protection des données personnelles et exercer vos droits conformément à la « loi informatique et liberté » cliquez-ici.