Maison neuve à
Ganzeville
(76400) Référence :
LC2447211_4
Prix du projet : Maison avec Terrain
prix 182 311 €
- 4 pièces
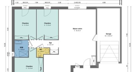
- 3 chambres
- Surface maison 90 m2
MAISON NEUVE DE 90 M² IDÉALEMENT SITUÉE À GANZEVILLE
PRÉSENTATION DU BIEN
Située à Ganzeville, cette maison neuve à construire offre une surface habitable de 90 m² sur un terrain de 751 m². Idéalement située à proximité de la Manche, cette demeure s'inscrit dans un secteur résidentiel.
Cette maison comprend trois chambres, une cuisine équipée, et une salle de bains. Elle est conçue pour optimser l'espace de vie dans un cadre confortable. Vous bénéficierez ainsi d'un lieu de vie prêt à être personnalisé selon vos envies.
La maison est de plain-pied. Cette configuration facilite la circulation et permet un accès simple à tous les espaces.
Le terrain de 751 m², spacieux, vous offre la possibilité de créer un espace extérieur selon vos besoins et souhaits.
ENVIRONNEMENT
Ganzeville est une commune calme à proximité de la Manche, à 6 kilomètres du littoral. Vous trouverez un restaurant à moins de 2 minutes à pied et un terrain de tennis accessible en moins de 20 minutes à pied. L'autoroute A29 est située à 17 kilomètres, facilitant les déplacements vers d'autres villes. La gare de Fécamp est également accessible, à environ 3,8 kilomètres.
NOUS CONTACTER
Cette maison est proposée à la vente au prix de 182 311 euros.
Pour en savoir plus, contactez Lindsay COLLAY de l'agence immobilière Maisons France Confort Sainte-Marie-des-Champs. Vous pouvez joindre l'agence au O6-67-66-O8-77.
N'hésitez pas à prendre contact pour concrétiser votre projet et construire votre maison à Ganzeville.
Mentions légales
Terrain proposé par un partenaire foncier selon disponibilités et autorisation de publicité au prix de 39 000 €. Hors droit d'enregistrement et frais de notaire. Terrain + Maison proposés au prix de 182 311 € (Hors branchements et raccordements, papiers peints, peintures, revêtement de sol dans les chambres. Tarif modifiable sans préavis). Etiquette énergie : A. Différents modèles disponibles pour ce terrain. Assurances et garanties du constructeur (RC professionnelle, décennale, dommage ouvrage, garantie de remboursement de l'acompte, livraison à prix et délai convenu) : https://www.maisons-france-confort.fr/mentions-legales/. HEXAOM Services est enregistré auprès de l'ORIAS en tant que Courtier en financement, Niveau 1, sous le numéro 14001345.Agence Maisons France Confort de Sainte-Marie-des-Champs (76190)
- Téléphone :
- 02 32 98 94 90
- Adressse :
- 74 avenue René Coty
76190 Sainte-Marie-des-Champs, France
