Maison neuve à
Bellegarde-sur-Valserine (01200) Référence : SG2625_2

Prix du projet : Maison avec Terrain

prix 459 500 €

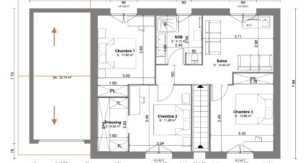
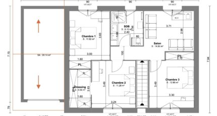
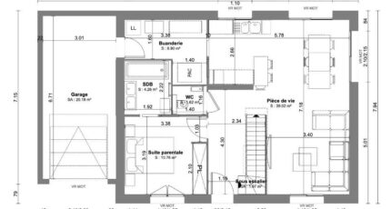
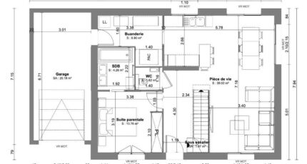
  • 5 pièces
  • 4 chambres
  • Surface maison 124 m2

Maison T5 (124 m²) à vendre à Éloise
PROCHE D'ANNECY - MAISON 5 PIÈCES NEUVE
En vente : à quelques kilomètres du Suisse et à deux pas d'Annecy, nous sommes heureux de vous présenter à Éloise (01200), cette maison de 5 pièces de 124 m² et de 696 m² de terrain.
C'est une maison de 2 niveaux. Elle compte quatre chambres, une cuisine et deux salles de bains. Cette maison est neuve.
Des écoles de tous niveaux se trouvent à moins de 10 minutes en voiture, tout comme cinq crèches à moins de 10 minutes à pied. Niveau transports, il y a les gares Bellegarde-sur-Valserine et Valleiry à moins de 10 minutes en voiture. L'autoroute A40 est accessible à 2 km. On trouve des bibliothèques, des tennis, quatre bassins de natation, des commerces, des boulangeries, des supermarchés, des épiceries et des boucheries-charcuteries à proximité. Enfin, 2 marchés animent le quartier.
Elle est à vendre pour la somme de 459 500 €.
N'hésitez pas à prendre contact avec Sébastien GABRILLARGUES (tél : 06-81-77-73-67) pour plus de renseignements sur la maison, sur les démarches à suivre ou sur les modalités de vente.

Annonce proposée par un Agent Commercial Partenaire.

Mentions légales

Terrain proposé par un partenaire foncier selon disponibilités et autorisation de publicité au prix de 170 000 €. Hors droit d'enregistrement et frais de notaire. Terrain + Maison proposés au prix de 459 500 € (Hors branchements et raccordements, papiers peints, peintures, revêtement de sol dans les chambres. Tarif modifiable sans préavis). Etiquette énergie : A. Différents modèles disponibles pour ce terrain. Assurances et garanties du constructeur (RC professionnelle, décennale, dommage ouvrage, garantie de remboursement de l'acompte, livraison à prix et délai convenu) : https://www.maisons-france-confort.fr/mentions-legales/. HEXAOM Services est enregistré auprès de l'ORIAS en tant que Courtier en financement, Niveau 1, sous le numéro 14001345.

Contactez l'agence de Bourg-en-Bresse

04 74 14 04 47

    * Champs obligatoires

    Vos informations sont traitées par HEXAOM et transmises à un conseiller commercial qui vous contactera afin de répondre à votre demande. Les plans et images présentés sur notre site sont la propriété d’HEXAOM et ne peuvent pas être reproduits sans son accord. Pour retrouver notre politique de protection des données personnelles et exercer vos droits conformément à la « loi informatique et liberté » cliquez-ici.