Maison neuve à
Bellegarde-sur-Valserine (01200) Référence : SG2626_3

Prix du projet : Maison avec Terrain

prix 385 000 €

  • 5 pièces
  • 4 chambres
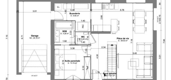
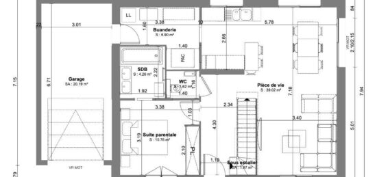
  • Surface maison 100 m2

VENTE d'une maison de 5 pièces (100 m²) à Éloise
MAISON 5 PIÈCES NEUVE - PROCHE D'ANNECY
À moins de 17 km du Suisse et à quelques kilomètres d'Annecy, ayez le coup de coeur pour cette maison de 5 pièces de 100 m² et de 462 m² de terrain en vente à Éloise (01200).
C'est une maison de 2 niveaux. Son intérieur compte quatre chambres, une cuisine et deux salles de bains. Cette maison est neuve.
Il y a des établissements scolaires (de la maternelle au lycée) à moins de 10 minutes en voiture, tout comme cinq crèches à moins de 10 minutes à pied. Côté transports, on trouve deux gares (Bellegarde-sur-Valserine et Valleiry) à moins de 10 minutes en voiture. On trouve un accès à l'autoroute A40 à 2 km. Il y a des bibliothèques, des tennis, quatre bassins de natation, des commerces, des boulangeries, des supermarchés, des bureaux de poste et des épiceries à quelques minutes de la maison. Enfin, 2 marchés animent le quartier.
Son prix de vente est de 385 000 €.
N'hésitez pas à prendre contact avec notre agence (Sébastien GABRILLARGUES : 06-81-77-73-67) pour obtenir de plus amples renseignements sur la maison.

Annonce proposée par un Agent Commercial Partenaire.

Mentions légales

Terrain proposé par un partenaire foncier selon disponibilités et autorisation de publicité au prix de 150 000 €. Hors droit d'enregistrement et frais de notaire. Terrain + Maison proposés au prix de 385 000 € (Hors branchements et raccordements, papiers peints, peintures, revêtement de sol dans les chambres. Tarif modifiable sans préavis). Etiquette énergie : A. Différents modèles disponibles pour ce terrain. Assurances et garanties du constructeur (RC professionnelle, décennale, dommage ouvrage, garantie de remboursement de l'acompte, livraison à prix et délai convenu) : https://www.maisons-france-confort.fr/mentions-legales/. HEXAOM Services est enregistré auprès de l'ORIAS en tant que Courtier en financement, Niveau 1, sous le numéro 14001345.

Contactez l'agence de Bourg-en-Bresse

04 74 14 04 47

    * Champs obligatoires

    Vos informations sont traitées par HEXAOM et transmises à un conseiller commercial qui vous contactera afin de répondre à votre demande. Les plans et images présentés sur notre site sont la propriété d’HEXAOM et ne peuvent pas être reproduits sans son accord. Pour retrouver notre politique de protection des données personnelles et exercer vos droits conformément à la « loi informatique et liberté » cliquez-ici.