Maison neuve à
Bellegarde-sur-Valserine (01200) Référence : SG2626_1

Prix du projet : Maison avec Terrain

prix 355 000 €

  • 4 pièces
  • 3 chambres
  • Surface maison 85 m2

VENTE : maison de 4 pièces (85 m²) à Éloise
MAISON 4 PIÈCES NEUVE - PROCHE D'ANNECY
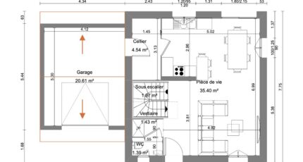
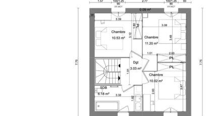
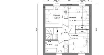
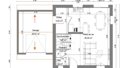
À vendre à quelques kilomètres du Suisse et à deux pas d'Annecy, votre agence Maisons France Confort Bourg-en-Bresse est ravie de vous proposer à Éloise (01200), cette maison de 4 pièces de 85 m² et de 462 m² de terrain. Elle se divise en trois chambres, une cuisine et une salle de bains.
Cette maison compte 2 niveaux. Elle est neuve.
Il y a des établissements scolaires de tous niveaux à moins de 10 minutes en voiture, tout comme cinq crèches à moins de 10 minutes à pied. Niveau transports, on trouve les gares Bellegarde-sur-Valserine et Valleiry à moins de 10 minutes en voiture. Il y a un accès à l'autoroute A40 à 2 km. Il y a des bibliothèques, des tennis, quatre bassins de natation, des commerces, des boulangeries, des supermarchés, des bureaux de poste et des boucheries-charcuteries dans les environs. Enfin, 2 marchés animent le quartier.
Elle est proposée à l'achat pour 355 000 €.
Contactez notre agence (Sébastien GABRILLARGUES : 06-81-77-73-67) pour plus d'informations sur la maison, sur les modalités de vente ou sur les démarches à suivre.

Annonce proposée par un Agent Commercial Partenaire.

Mentions légales

Terrain proposé par un partenaire foncier selon disponibilités et autorisation de publicité au prix de 150 000 €. Hors droit d'enregistrement et frais de notaire. Terrain + Maison proposés au prix de 355 000 € (Hors branchements et raccordements, papiers peints, peintures, revêtement de sol dans les chambres. Tarif modifiable sans préavis). Etiquette énergie : A. Différents modèles disponibles pour ce terrain. Assurances et garanties du constructeur (RC professionnelle, décennale, dommage ouvrage, garantie de remboursement de l'acompte, livraison à prix et délai convenu) : https://www.maisons-france-confort.fr/mentions-legales/. HEXAOM Services est enregistré auprès de l'ORIAS en tant que Courtier en financement, Niveau 1, sous le numéro 14001345.

Contactez l'agence de Bourg-en-Bresse

04 74 14 04 47

    * Champs obligatoires

    Vos informations sont traitées par HEXAOM et transmises à un conseiller commercial qui vous contactera afin de répondre à votre demande. Les plans et images présentés sur notre site sont la propriété d’HEXAOM et ne peuvent pas être reproduits sans son accord. Pour retrouver notre politique de protection des données personnelles et exercer vos droits conformément à la « loi informatique et liberté » cliquez-ici.