Maison neuve à
Bellegarde-sur-Valserine (01200) Référence : SG2626_2

Prix du projet : Maison avec Terrain

prix 346 500 €

  • 4 pièces
  • 3 chambres
  • Surface maison 96 m2

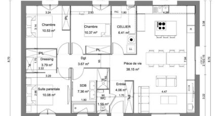
VENTE d'une maison de 4 pièces (96 m²) à Éloise
MAISON 4 PIÈCES NEUVE - PROCHE D'ANNECY
À 17 km de la frontière suisse et à 31 km d'Annecy, nous vous présentons en vente à Éloise (01200), cette maison de 4 pièces de plain-pied de 96 m² et de 462 m² de terrain. Conçue de plain-pied, elle se divise en trois chambres, une cuisine et une salle de bains.
Cette maison est neuve.
Des écoles du primaire et du secondaire sont implantées à moins de 10 minutes en voiture, tout comme cinq structures d'accueil pour les tout-petits à moins de 10 minutes à pied. Côté transports en commun, il y a les gares Bellegarde-sur-Valserine et Valleiry à moins de 10 minutes en voiture. L'autoroute A40 est accessible à 2 km. On trouve des bibliothèques, des tennis, quatre bassins de natation, des commerces, des boulangeries, des supermarchés, des épiceries et des boucheries-charcuteries dans les environs. Enfin, 2 marchés animent le quartier.
Elle est proposée à l'achat pour 346 500 €.
Contactez notre agence (GABRILLARGUES Sébastien : 06-81-77-73-67) pour tout renseignement sur la maison ou sur les modalités de vente.

Annonce proposée par un Agent Commercial Partenaire.

Mentions légales

Terrain proposé par un partenaire foncier selon disponibilités et autorisation de publicité au prix de 150 000 €. Hors droit d'enregistrement et frais de notaire. Terrain + Maison proposés au prix de 346 500 € (Hors branchements et raccordements, papiers peints, peintures, revêtement de sol dans les chambres. Tarif modifiable sans préavis). Etiquette énergie : A. Différents modèles disponibles pour ce terrain. Assurances et garanties du constructeur (RC professionnelle, décennale, dommage ouvrage, garantie de remboursement de l'acompte, livraison à prix et délai convenu) : https://www.maisons-france-confort.fr/mentions-legales/. HEXAOM Services est enregistré auprès de l'ORIAS en tant que Courtier en financement, Niveau 1, sous le numéro 14001345.

Contactez l'agence de Bourg-en-Bresse

04 74 14 04 47

    * Champs obligatoires

    Vos informations sont traitées par HEXAOM et transmises à un conseiller commercial qui vous contactera afin de répondre à votre demande. Les plans et images présentés sur notre site sont la propriété d’HEXAOM et ne peuvent pas être reproduits sans son accord. Pour retrouver notre politique de protection des données personnelles et exercer vos droits conformément à la « loi informatique et liberté » cliquez-ici.