Maison neuve à
Injoux-Génissiat (01200) Référence : SG2627_2

Prix du projet : Maison avec Terrain

prix 422 000 €

  • 5 pièces
  • 4 chambres
  • Surface maison 124 m2

VENTE : maison de 5 pièces (124 m²) à Injoux-Génissiat
MAISON 5 PIÈCES NEUVE
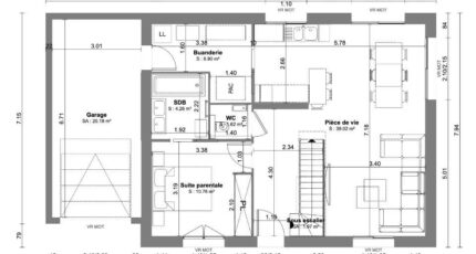
À vendre : située à quelques kilomètres du Suisse, votre agence Maisons France Confort Bourg-en-Bresse est heureuse de vous présenter cette maison de 5 pièces de 124 m² et de 927 m² de terrain à Injoux-Génissiat (01200).
Il s'agit d'une maison de 2 niveaux. Elle comporte quatre chambres, une cuisine et deux salles de bains. La maison est neuve.
On trouve l'École Primaire des Balmettes dans la commune. Niveau transports en commun, il y a la gare Bellegarde-sur-Valserine à moins de 10 minutes en voiture. On trouve un accès à l'autoroute A40 à 8 km. On trouve une bibliothèque à proximité de la maison.
Il est proposé à l'achat pour 422 000 €.
Prenez contact avec notre agence (GABRILLARGUES Sébastien : 06-81-77-73-67) pour obtenir de plus amples informations sur la maison.

Annonce proposée par un Agent Commercial Partenaire.

Mentions légales

Terrain proposé par un partenaire foncier selon disponibilités et autorisation de publicité au prix de 139 000 €. Hors droit d'enregistrement et frais de notaire. Terrain + Maison proposés au prix de 422 000 € (Hors branchements et raccordements, papiers peints, peintures, revêtement de sol dans les chambres. Tarif modifiable sans préavis). Etiquette énergie : A. Différents modèles disponibles pour ce terrain. Assurances et garanties du constructeur (RC professionnelle, décennale, dommage ouvrage, garantie de remboursement de l'acompte, livraison à prix et délai convenu) : https://www.maisons-france-confort.fr/mentions-legales/. HEXAOM Services est enregistré auprès de l'ORIAS en tant que Courtier en financement, Niveau 1, sous le numéro 14001345.

Contactez l'agence de Bourg-en-Bresse

04 74 14 04 47

    * Champs obligatoires

    Vos informations sont traitées par HEXAOM et transmises à un conseiller commercial qui vous contactera afin de répondre à votre demande. Les plans et images présentés sur notre site sont la propriété d’HEXAOM et ne peuvent pas être reproduits sans son accord. Pour retrouver notre politique de protection des données personnelles et exercer vos droits conformément à la « loi informatique et liberté » cliquez-ici.