Maison neuve à
Éragny-sur-Epte
(60590) Référence :
CY2288015_1
Prix du projet : Maison avec Terrain
prix 245 000 €
- 5 pièces
- 3 chambres
- Surface maison 90 m2
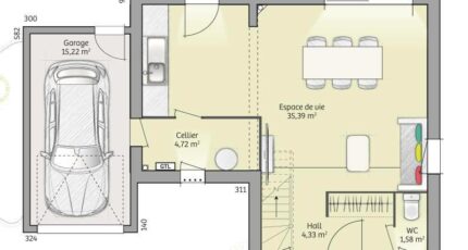
Éragny-sur-Epte : maison T5 (90 m²) en vente
PROCHE GARE - MAISON 5 PIÈCES NEUVE
À côté de la gare de Gisors (Paris à 1 h par le Transilien J), nous vous proposons cette maison de 5 pièces de 90 m² dans Éragny-sur-Epte (60590), proche de la gare.
Il s'agit d'une maison de 2 niveaux. Elle est composée de trois chambres, d'une cuisine et d'une salle de bains. Cette maison est neuve.
Le terrain de la propriété s'étend sur 460 m².
L'École Primaire Jean Mermoz se trouve à moins de 10 minutes à pied. Niveau transports, il y a quatre gares à moins de 10 minutes en voiture. La nationale N31 est accessible à 19 km et Beauvais se trouve à 26 km. Il y a un tennis et une bibliothèque dans les environs.
Son prix de vente est de 245 000 €.
Contactez Cedric YAHIAOUI (06-66-57-00-63) pour toute question sur la maison ou sur les modalités de vente. Concrétisez vos projets immobiliers avec Maisons France Confort Magny-le-Hongre.
Annonce proposée par un Agent Commercial Partenaire.
Mentions légales
Terrain proposé par un partenaire foncier selon disponibilités et autorisation de publicité au prix de 68 900 €. Hors droit d'enregistrement et frais de notaire. Maison proposée, avec un contrat de construction de maison individuelle, dans le cadre de la loi du 19/12/1990, au prix de 176 100 € (Hors branchements et raccordements, papiers peints, peintures, revêtement de sol dans les chambres, qui sont chiffrés dans les travaux qui restent à charge du client. Tarif modifiable sans préavis). Étiquette énergie : A. Différents modèles disponibles pour ce terrain. Assurances et garanties du constructeur comprises (RC professionnelle, décennale, dommage ouvrage).Agence Maisons France Confort de Magny-le-Hongre (77700)
- Téléphone :
- 01 84 80 92 96
- Adressse :
- 11 rue de Courtalin
77700 Magny-le-Hongre, France
