Maison neuve à
Éragny-sur-Epte
(60590) Référence :
CY2316132_2
Prix du projet : Maison avec Terrain
prix 245 000 €
- 5 pièces
- 3 chambres
- Surface maison 90 m2
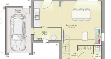
VENTE d'une maison de 5 pièces (90 m²) à Éragny-sur-Epte
IDÉALEMENT SITUÉE - MAISON 5 PIÈCES NEUVE
À vendre : à proximité de la gare de Gisors (Paris à 1 h par le Transilien J), nous vous proposons, idéalement située dans Éragny-sur-Epte (60590), cette maison de 5 pièces de 90 m² et de 457 m² de terrain. Son intérieur compte trois chambres, une cuisine et une salle de bains.
C'est une maison de 2 niveaux. Elle est neuve.
Cette maison se situe dans un secteur recherché. L'École Primaire Jean Mermoz se trouve à moins de 10 minutes à pied. Niveau transports, il y a quatre gares à moins de 10 minutes en voiture. La nationale N31 est accessible à 19 km et Beauvais se trouve à 26 km. Il y a un tennis et une bibliothèque à quelques minutes à peine.
Elle est proposée à l'achat pour 245 000 €.
Contactez notre agence (Cedric YAHIAOUI : 06-66-57-00-63) pour plus d'informations sur la maison, sur les démarches à suivre ou sur les modalités de vente.
Annonce proposée par un Agent Commercial Partenaire.
Mentions légales
Terrain proposé par un partenaire foncier selon disponibilités et autorisation de publicité au prix de 68 900 €. Hors droit d'enregistrement et frais de notaire. Maison proposée, avec un contrat de construction de maison individuelle, dans le cadre de la loi du 19/12/1990, au prix de 176 100 € (Hors branchements et raccordements, papiers peints, peintures, revêtement de sol dans les chambres, qui sont chiffrés dans les travaux qui restent à charge du client. Tarif modifiable sans préavis). Étiquette énergie : A. Différents modèles disponibles pour ce terrain. Assurances et garanties du constructeur comprises (RC professionnelle, décennale, dommage ouvrage).Agence Maisons France Confort de Magny-le-Hongre (77700)
- Téléphone :
- 01 84 80 92 96
- Adressse :
- 11 rue de Courtalin
77700 Magny-le-Hongre, France
