Maison neuve à
Éragny-sur-Epte
(60590) Référence :
MD2318996_4
Prix du projet : Maison avec Terrain
prix 197 280 €
- 6 pièces
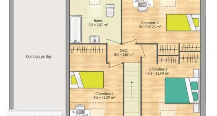
- 4 chambres
- Surface maison 89 m2
Maison de 6 pièces (89 m²) à vendre à Éragny-sur-Epte
CENTRE-VILLE - MAISON 6 PIÈCES NEUVE
À proximité du Transilien J (gare de Gisors, 1 h de Paris), en vente à Éragny-sur-Epte (60590), en centre-ville, nous sommes ravis de vous présenter cette maison de 6 pièces de 89 m² et de 460 m² de terrain. Son intérieur comporte quatre chambres, une cuisine et une salle de bains.
Cette maison compte 2 niveaux. Elle est neuve.
L'École Primaire Jean Mermoz est implantée à moins de 10 minutes à pied. Niveau transports, on trouve quatre gares à moins de 10 minutes en voiture. La nationale N31 est accessible à 19 km et Beauvais est située à 26 km. Il y a un tennis et une bibliothèque à quelques minutes à peine.
Son prix de vente est de 197 280 €.
Prenez contact avec Murielle DEBART (06-29-34-36-28) pour toute question sur la maison. Maisons France Confort Vernon est là pour vous accompagner à toutes les étapes de l'achat.
Mentions légales
Terrain proposé par un partenaire foncier selon disponibilités et autorisation de publicité au prix de 36 690 €. Hors droit d'enregistrement et frais de notaire. Maison proposée, avec un contrat de construction de maison individuelle, dans le cadre de la loi du 19/12/1990, au prix de 160 590 € (Hors branchements et raccordements, papiers peints, peintures, revêtement de sol dans les chambres, qui sont chiffrés dans les travaux qui restent à charge du client. Tarif modifiable sans préavis). Étiquette énergie : A. Différents modèles disponibles pour ce terrain. Assurances et garanties du constructeur comprises (RC professionnelle, décennale, dommage ouvrage).Agence Maisons France Confort de Vernon (27200)
- Téléphone :
- 02 32 51 45 05
- Adressse :
- 38 rue Carnot
27200 Vernon, France
