Maison neuve à
Éragny-sur-Epte
(60590) Référence :
CY2428505_57
Prix du projet : Maison avec Terrain
prix 250 000 €
- 5 pièces
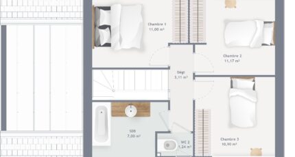
- 3 chambres
- Surface maison 90 m2
Éragny-sur-Epte : maison de 5 pièces (90 m²) à vendre
PROCHE GARE - MAISON 5 PIÈCES NEUVE
En vente : au pied de la gare de Gisors (Paris à 1 h avec le Transilien J), votre agence Maisons France Confort Magny-le-Hongre est heureuse de vous proposer cette maison de 5 pièces de 90 m² et de 457 m² de terrain proche de la gare d'Éragny-sur-Epte (60590). Elle inclut trois chambres, une cuisine et une salle de bains.
Cette maison possède 2 niveaux. Elle est neuve.
L'École Primaire Jean Mermoz se trouve à moins de 10 minutes à pied. Côté transports, il y a quatre gares à moins de 10 minutes en voiture. La nationale N31 est accessible à 19 km et Beauvais est située à 26 km. On trouve un tennis et une bibliothèque à quelques minutes du bien.
Elle est proposée à l'achat pour 250 000 €.
Prenez contact avec notre constructeur (Cedric YAHIAOUI : 06-66-57-00-63) pour tout renseignement sur la maison. Maisons France Confort Magny-le-Hongre vous accompagne dans toutes vos démarches et à toutes les étapes de l'achat.
Annonce proposée par un Agent Commercial Partenaire.
Mentions légales
Terrain proposé par un partenaire foncier selon disponibilités et autorisation de publicité au prix de 68 900 €. Hors droit d'enregistrement et frais de notaire. Terrain + Maison proposés au prix de 250 000 € (Hors branchements et raccordements, papiers peints, peintures, revêtement de sol dans les chambres. Tarif modifiable sans préavis). Etiquette énergie : A. Différents modèles disponibles pour ce terrain. Assurances et garanties du constructeur (RC professionnelle, décennale, dommage ouvrage, garantie de remboursement de l'acompte, livraison à prix et délai convenu) : https://www.maisons-france-confort.fr/mentions-legales/. HEXAOM Services est enregistré auprès de l'ORIAS en tant que Courtier en financement, Niveau 1, sous le numéro 14001345.Agence Maisons France Confort de Mareuil-lès-Meaux (77100)
- Téléphone :
- 01 60 09 28 30
- Adressse :
- Domexpo Est Village La Hayette
77100 Mareuil-lès-Meaux, France
