Maison neuve à
Éragny-sur-Epte (60590) Référence : CY2431632_2

Prix du projet : Maison avec Terrain

prix 245 000 €

  • 5 pièces
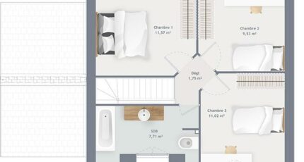
  • 3 chambres
  • Surface maison 80 m2

VENTE : maison de 5 pièces (80 m²) à Éragny-sur-Epte
PROCHE DE BEAUVAIS - MAISON 5 PIÈCES NEUVE
À vendre : au pied de la gare de Gisors (Paris à 1 h avec le Transilien J), à Éragny-sur-Epte (60590), Maisons France Confort Magny-le-Hongre vous propose cette maison de 5 pièces de 80 m².
Il s'agit d'une maison de 2 niveaux. Elle comporte trois chambres, une cuisine et une salle de bains. La maison est neuve.
Le terrain du bien s'étend sur 722 m².
On trouve l'École Primaire Jean Mermoz à moins de 10 minutes à pied. Niveau transports, il y a quatre gares à moins de 10 minutes en voiture. On trouve un accès à la nationale N31 à 19 km et Beauvais est située à 26 km. Il y a un tennis et une bibliothèque dans les environs.
Son prix de vente est de 245 000 €.
N'hésitez pas à prendre contact avec notre agence (YAHIAOUI Cedric : 06-66-57-00-63) pour toute question sur cette maison.

Annonce proposée par un Agent Commercial Partenaire.

Mentions légales

Terrain proposé par un partenaire foncier selon disponibilités et autorisation de publicité au prix de 71 900 €. Hors droit d'enregistrement et frais de notaire. Terrain + Maison proposés au prix de 245 000 € (Hors branchements et raccordements, papiers peints, peintures, revêtement de sol dans les chambres. Tarif modifiable sans préavis). Etiquette énergie : A. Différents modèles disponibles pour ce terrain. Assurances et garanties du constructeur (RC professionnelle, décennale, dommage ouvrage, garantie de remboursement de l'acompte, livraison à prix et délai convenu) : https://www.maisons-france-confort.fr/mentions-legales/. HEXAOM Services est enregistré auprès de l'ORIAS en tant que Courtier en financement, Niveau 1, sous le numéro 14001345.

Contactez l'agence de Mareuil-lès-Meaux

01 60 09 28 30

    * Champs obligatoires

    Vos informations sont traitées par HEXAOM et transmises à un conseiller commercial qui vous contactera afin de répondre à votre demande. Les plans et images présentés sur notre site sont la propriété d’HEXAOM et ne peuvent pas être reproduits sans son accord. Pour retrouver notre politique de protection des données personnelles et exercer vos droits conformément à la « loi informatique et liberté » cliquez-ici.