Maison neuve à
Éragny-sur-Epte (60590) Référence : CY2431632_21

Prix du projet : Maison avec Terrain

prix 255 000 €

  • 5 pièces
  • 3 chambres
  • Surface maison 90 m2

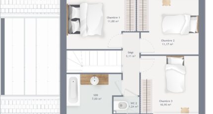
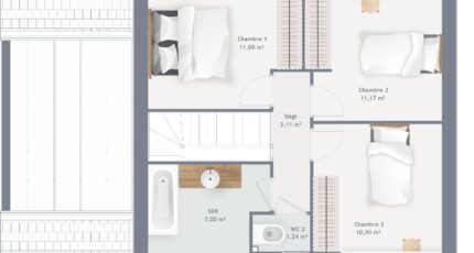
VENTE d'une maison F5 (90 m²) à Éragny-sur-Epte
PROCHE GARE - MAISON 5 PIÈCES NEUVE
À vendre : à deux pas du Transilien J (gare de Gisors, 1 h de Paris), votre agence Maisons France Confort Magny-le-Hongre est ravie de vous proposer cette maison de 5 pièces de 90 m² proche de la gare d'Éragny-sur-Epte (60590).
C'est une maison de 2 niveaux. Elle compte trois chambres, une cuisine et une salle de bains. Cette maison est neuve.
Le terrain du bien est de 495 m².
L'École Primaire Jean Mermoz se trouve à moins de 10 minutes à pied. Niveau transports, il y a quatre gares à moins de 10 minutes en voiture. La nationale N31 est accessible à 19 km et Beauvais se trouve à 26 km. Il y a un tennis et une bibliothèque à quelques minutes.
Son prix de vente est de 255 000 €.
Contactez Cedric YAHIAOUI (tél : 06-66-57-00-63) pour tout renseignement sur la maison.

Annonce proposée par un Agent Commercial Partenaire.

Mentions légales

Terrain proposé par un partenaire foncier selon disponibilités et autorisation de publicité au prix de 71 900 €. Hors droit d'enregistrement et frais de notaire. Terrain + Maison proposés au prix de 255 000 € (Hors branchements et raccordements, papiers peints, peintures, revêtement de sol dans les chambres. Tarif modifiable sans préavis). Etiquette énergie : A. Différents modèles disponibles pour ce terrain. Assurances et garanties du constructeur (RC professionnelle, décennale, dommage ouvrage, garantie de remboursement de l'acompte, livraison à prix et délai convenu) : https://www.maisons-france-confort.fr/mentions-legales/. HEXAOM Services est enregistré auprès de l'ORIAS en tant que Courtier en financement, Niveau 1, sous le numéro 14001345.

Contactez l'agence de Mareuil-lès-Meaux

01 60 09 28 30

    * Champs obligatoires

    Vos informations sont traitées par HEXAOM et transmises à un conseiller commercial qui vous contactera afin de répondre à votre demande. Les plans et images présentés sur notre site sont la propriété d’HEXAOM et ne peuvent pas être reproduits sans son accord. Pour retrouver notre politique de protection des données personnelles et exercer vos droits conformément à la « loi informatique et liberté » cliquez-ici.