Maison neuve à
Éragny-sur-Epte
(60590) Référence :
CY2431868_37
Prix du projet : Maison avec Terrain
prix 250 000 €
- 5 pièces
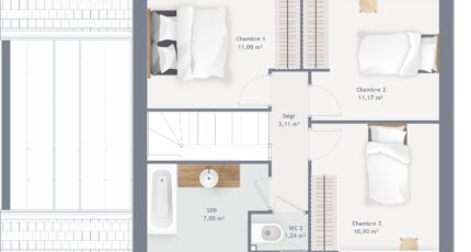
- 3 chambres
- Surface maison 90 m2
Maison T5 (90 m²) à vendre à Éragny-sur-Epte
MAISON 5 PIÈCES NEUVE - PROCHE DE BEAUVAIS
À vendre : à côté de la gare de Gisors (Paris à 1 h avec le Transilien J), nous vous présentons cette maison de 5 pièces de 90 m² et de 459 m² de terrain à Éragny-sur-Epte (60590). Son intérieur offre trois chambres, une cuisine et une salle de bains.
Il s'agit d'une maison de 2 niveaux. Elle est neuve.
L'École Primaire Jean Mermoz est implantée à moins de 10 minutes à pied. Niveau transports en commun, on trouve quatre gares à moins de 10 minutes en voiture. On trouve un accès à la nationale N31 à 19 km et Beauvais se situe à 26 km. Il y a un tennis et une bibliothèque à proximité.
Son prix de vente est de 250 000 €.
N'hésitez pas à prendre contact avec notre agence (YAHIAOUI Cedric : 06-66-57-00-63) pour toute question sur la maison. Maisons France Confort Magny-le-Hongre est là pour vous accompagner dans toutes vos démarches.
Annonce proposée par un Agent Commercial Partenaire.
Mentions légales
Terrain proposé par un partenaire foncier selon disponibilités et autorisation de publicité au prix de 68 900 €. Hors droit d'enregistrement et frais de notaire. Terrain + Maison proposés au prix de 250 000 € (Hors branchements et raccordements, papiers peints, peintures, revêtement de sol dans les chambres. Tarif modifiable sans préavis). Etiquette énergie : A. Différents modèles disponibles pour ce terrain. Assurances et garanties du constructeur (RC professionnelle, décennale, dommage ouvrage, garantie de remboursement de l'acompte, livraison à prix et délai convenu) : https://www.maisons-france-confort.fr/mentions-legales/. HEXAOM Services est enregistré auprès de l'ORIAS en tant que Courtier en financement, Niveau 1, sous le numéro 14001345.Agence Maisons France Confort de Mareuil-lès-Meaux (77100)
- Téléphone :
- 01 60 09 28 30
- Adressse :
- Domexpo Est Village La Hayette
77100 Mareuil-lès-Meaux, France
