Maison neuve à
Estrées-Saint-Denis (60190) Référence : XDSS2417778_3

Prix du projet : Maison avec Terrain

prix 305 000 €

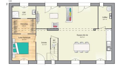
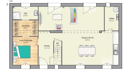
  • 6 pièces
  • 4 chambres
  • Surface maison 105 m2

VENTE : maison T6 (105 m²) à Arsy
IDÉALEMENT SITUÉE - MAISON 6 PIÈCES NEUVE
En vente : localisée à 11 km de Compiègne, idéalement située dans Arsy (60190), ayez le coup de coeur pour cette maison de 6 pièces de 105 m².
Cette maison comporte 2 niveaux. Elle inclut quatre chambres, une cuisine et deux salles de bains. La maison est neuve.
Le terrain de la propriété s'étend sur 426 m².
Cette maison est située dans un quartier recherché. On trouve l'École Primaire Séraphine Louis à moins de 10 minutes à pied. Niveau transports, il y a six gares à moins de 10 minutes en voiture. L'autoroute A1 et la nationale N31 sont accessibles à moins de 2 km. On trouve une bibliothèque à quelques minutes de la maison.
Son prix de vente est de 305 000 €.
N'hésitez pas à prendre contact avec notre agence (Xavier DOS SANTOS : 06-16-27-53-27) pour tout renseignement sur la maison. Maisons France Confort Compiègne vous accompagne à toutes les étapes de l'achat et dans toutes vos démarches.

Mentions légales

Terrain proposé par un partenaire foncier selon disponibilités et autorisation de publicité au prix de 80 900 €. Hors droit d'enregistrement et frais de notaire. Terrain + Maison proposés au prix de 305 000 € (Hors branchements et raccordements, papiers peints, peintures, revêtement de sol dans les chambres. Tarif modifiable sans préavis). Etiquette énergie : A. Différents modèles disponibles pour ce terrain. Assurances et garanties du constructeur (RC professionnelle, décennale, dommage ouvrage, garantie de remboursement de l'acompte, livraison à prix et délai convenu) : https://www.maisons-france-confort.fr/mentions-legales/. HEXAOM Services est enregistré auprès de l'ORIAS en tant que Courtier en financement, Niveau 1, sous le numéro 14001345.

Contactez l'agence de Compiègne

03 44 86 81 34

    * Champs obligatoires

    Vos informations sont traitées par HEXAOM et transmises à un conseiller commercial qui vous contactera afin de répondre à votre demande. Les plans et images présentés sur notre site sont la propriété d’HEXAOM et ne peuvent pas être reproduits sans son accord. Pour retrouver notre politique de protection des données personnelles et exercer vos droits conformément à la « loi informatique et liberté » cliquez-ici.