Maison neuve à
Everly
(77157) Référence :
AD2476059_4
Prix du projet : Maison avec Terrain
prix 255 400 €
- 5 pièces
- 3 chambres
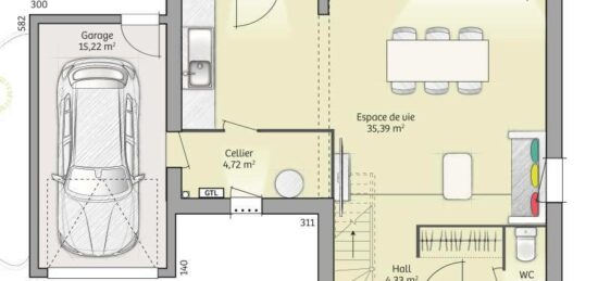
- Surface maison 90 m2
VENTE d'une maison F5 (90 m²) à Everly
EMPLACEMENT PRIVILÉGIÉ - MAISON 5 PIÈCES NEUVE
À vendre : proche de la gare de Longueville (Paris à 1 h avec le Transilien P), notre agence Maisons France Confort Nemours est ravie de vous proposer cette maison de 5 pièces de plain-pied de 90 m² et de 815 m² de terrain bénéficiant d'un emplacement privilégié dans Everly (77157).
Son intérieur dispose de trois chambres, d'une cuisine et de deux salles de bains. Cette maison est neuve.
Cette maison se situe dans un secteur attractif. Une école élémentaire y est implantée. Niveau transports en commun, il y a trois gares (Longueville, Sainte-Colombe Septveilles et Champbenoist-Poigny) à moins de 10 minutes en voiture. On trouve un tennis à quelques minutes à peine.
Son prix de vente est de 255 400 €.
Contactez Anne DELOHEN (06-30-93-26-67) pour toute information sur la maison, sur les modalités de vente ou sur les démarches à suivre.
Annonce proposée par un Agent Commercial Partenaire.
Mentions légales
Terrain proposé par un partenaire foncier selon disponibilités et autorisation de publicité au prix de 62 700 €. Hors droit d'enregistrement et frais de notaire. Terrain + Maison proposés au prix de 255 400 € (Hors branchements et raccordements, papiers peints, peintures, revêtement de sol dans les chambres. Tarif modifiable sans préavis). Etiquette énergie : A. Différents modèles disponibles pour ce terrain. Assurances et garanties du constructeur (RC professionnelle, décennale, dommage ouvrage, garantie de remboursement de l'acompte, livraison à prix et délai convenu) : https://www.maisons-france-confort.fr/mentions-legales/. HEXAOM Services est enregistré auprès de l'ORIAS en tant que Courtier en financement, Niveau 1, sous le numéro 14001345.Agence Maisons France Confort de Nemours (77140)
- Téléphone :
- 01 64 28 58 32
- Adressse :
- 16 Avenue Carnot
77140 Nemours, France
